- 物件番号
- 53853-80721
- 情報更新日
- 2025.11.14
| 階数 | 4 |
|---|---|
| 用途/仕様 | 事務所 |
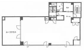
| 面積 | 41.87坪() |
| 賃料 | |
| 共益費 | |
| 預託金 | |
| 入居日 | |
| 所在地 | 東京都港区南青山6-8-18 |
| 竣工 | 1970年1月 |
| 最寄り駅 | 銀座線 表参道 徒歩 10分 |
| 構造 | SRC造 |
ポイント
P's南青山ビルディングは、東京都港区南青山6-8-18に位置するオフィスビルです。最寄り駅は東京メトロ銀座線「表参道」駅(徒歩10分)です。骨董通り沿いのガラスウォールが印象的なビルで、周囲の築年数が経過した建物と比較しても貴重な築浅物件。隣接ビルとの距離があり、開放感のある造りになっています。ぜひご内見ください。
無料相談で理想のオフィスを見つけましょう
東京で賃貸オフィスをお探しなら、仲介手数料0円の東京オフィスチェックにお任せください。
移転をお考えの方も、お迷いの方も、メールフォームやお電話でお気軽にご相談ください。
ピーズ南青山ビルディング のアクセス
ピーズ南青山ビルディング の募集中区画
| 階数 | 面積(坪) | 賃料(円) | 共益費(円) | 預託金 | 入居可能日 | 検討リスト | 詳細 |
|---|
この区画にオススメのレイアウト
-
オフィスサンプルレイアウト120
- 広さ
- 30.2坪(100㎡)
- 会議室
- あり
- 従業員数
- 12
-
オフィスサンプルレイアウト118
- 広さ
- 40.2坪(133㎡)
- 会議室
- なし
- 従業員数
- 20
-
オフィスサンプルレイアウト117
- 広さ
- 22.6坪(75㎡)
- 会議室
- あり
- 従業員数
- 11
-
オフィスサンプルレイアウト116
- 広さ
- 39.9坪(132㎡)
- 会議室
- あり
- 従業員数
- 11
ピーズ南青山ビルディング の近隣のエリア・駅から探す
お問い合わせ
無料相談で理想のオフィスを見つけましょう
東京で賃貸オフィスをお探しなら、仲介手数料0円の東京オフィスチェックにお任せください。移転をお考えの方も、お迷いの方も、メールフォームやお電話でお気軽にご相談ください。




