- 物件番号
- 53717-86649
- 情報更新日
- 2025.11.14
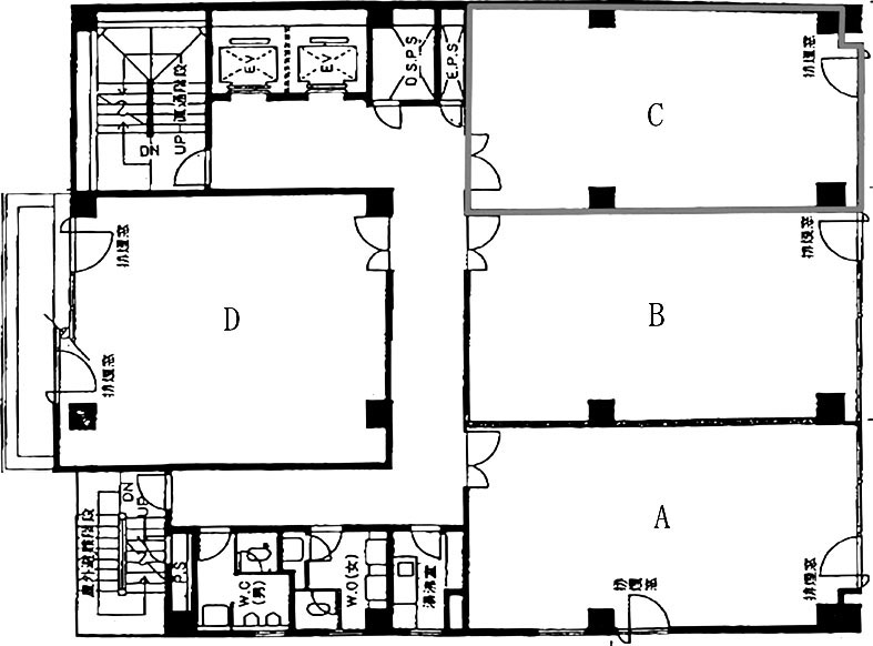
| 階数 | 3C |
|---|---|
| 用途/仕様 | 事務所 |
| 面積 | 14.55坪() |
| 賃料 | |
| 共益費 | |
| 預託金 | |
| 入居日 | |
| 所在地 | 東京都港区赤坂4-2-8 |
| 竣工 | 1982年3月 |
| 最寄り駅 |
銀座線 赤坂見附 徒歩 3分 丸ノ内線 赤坂見附 徒歩 3分 |
| 構造 | RC造 |
ポイント
東京都港区赤坂にある地上6階地下1階の賃貸オフィス物件です。 最寄りは、銀座線・丸ノ内線各赤坂見附駅徒歩3分、その他、赤坂駅、永田町駅、溜池山王駅が利用可能です。 1982年竣工、エレベーターは2基、分譲タイプのオフィスで、区画によって坪数が異なります。 建物は一ツ木通り沿いに立地し、周辺は飲食店が豊富、徒歩1分の場所にはコンビニがあります。
無料相談で理想のオフィスを見つけましょう
東京で賃貸オフィスをお探しなら、仲介手数料0円の東京オフィスチェックにお任せください。
移転をお考えの方も、お迷いの方も、メールフォームやお電話でお気軽にご相談ください。
金春ビル のアクセス
金春ビル の募集中区画
| 階数 | 面積(坪) | 賃料(円) | 共益費(円) | 預託金 | 入居可能日 | 検討リスト | 詳細 |
|---|
この区画にオススメのレイアウト
-
オフィスサンプルレイアウト98
- 広さ
- 14.7坪(49㎡)
- 会議室
- あり
- 従業員数
- 4
-
オフィスサンプルレイアウト70
- 広さ
- 14.4坪(48㎡)
- 会議室
- あり
- 従業員数
- 5
-
オフィスサンプルレイアウト64
- 広さ
- 16.8坪(56㎡)
- 会議室
- あり
- 従業員数
- 5
-
オフィスサンプルレイアウト61
- 広さ
- 15.6坪(52㎡)
- 会議室
- あり
- 従業員数
- 7
金春ビル の近隣のエリア・駅から探す
お問い合わせ
無料相談で理想のオフィスを見つけましょう
東京で賃貸オフィスをお探しなら、仲介手数料0円の東京オフィスチェックにお任せください。移転をお考えの方も、お迷いの方も、メールフォームやお電話でお気軽にご相談ください。




