- 物件番号
- 53642-69055
- 情報更新日
- 2024.12.25
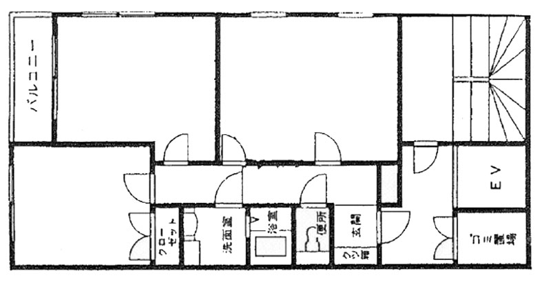
| 階数 | 401 |
|---|---|
| 用途/仕様 | 事務所 |
| 面積 | 22.09坪() |
| 賃料 | |
| 共益費 | |
| 預託金 | |
| 入居日 | |
| 所在地 | 東京都港区南麻布5-2-35 |
| 竣工 | 1970年1月 |
| 最寄り駅 | 日比谷線 広尾 徒歩 5分 |
| 構造 | RC造 |
ポイント
イシマルマンションは、東京都港区南麻布5-2-35に位置するオフィスビルです。最寄り駅は東京メトロ日比谷線「広尾」駅(徒歩5分)です。外苑西通りに面し、1階にはコンビニが入居しているため、来客時の案内がしやすい立地です。地下1階〜2階は事務所・店舗仕様、3階以上はマンションタイプの区分所有物件で、事務所利用可能な部屋もございます。英会話スクールや幼児教室など、教育系のテナントが多く入居しています。
無料相談で理想のオフィスを見つけましょう
東京で賃貸オフィスをお探しなら、仲介手数料0円の東京オフィスチェックにお任せください。
移転をお考えの方も、お迷いの方も、メールフォームやお電話でお気軽にご相談ください。
イシマルマンション のアクセス
イシマルマンション の募集中区画
| 階数 | 面積(坪) | 賃料(円) | 共益費(円) | 預託金 | 入居可能日 | 検討リスト | 詳細 |
|---|
この区画にオススメのレイアウト
-
オフィスサンプルレイアウト120
- 広さ
- 30.2坪(100㎡)
- 会議室
- あり
- 従業員数
- 12
-
オフィスサンプルレイアウト118
- 広さ
- 40.2坪(133㎡)
- 会議室
- なし
- 従業員数
- 20
-
オフィスサンプルレイアウト117
- 広さ
- 22.6坪(75㎡)
- 会議室
- あり
- 従業員数
- 11
-
オフィスサンプルレイアウト116
- 広さ
- 39.9坪(132㎡)
- 会議室
- あり
- 従業員数
- 11
イシマルマンション の近隣のエリア・駅から探す
お問い合わせ
無料相談で理想のオフィスを見つけましょう
東京で賃貸オフィスをお探しなら、仲介手数料0円の東京オフィスチェックにお任せください。移転をお考えの方も、お迷いの方も、メールフォームやお電話でお気軽にご相談ください。





