- 物件番号
- 53465-66300
- 情報更新日
- 2024.12.25
| 階数 | 7 |
|---|---|
| 用途/仕様 | 事務所 |
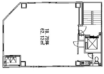
| 面積 | 18.79坪() |
| 賃料 | |
| 共益費 | |
| 預託金 | |
| 入居日 | |
| 所在地 | 東京都港区東新橋2-9-7 |
| 竣工 | 2006年5月 |
| 最寄り駅 |
都営大江戸線 汐留 徒歩 6分 JR山手線 新橋 徒歩 7分 |
| 構造 | S造 |
ポイント
汐留駅より徒歩5分、港区東新橋2丁目にある賃貸オフィスビルです。2006年竣工で、新耐震基準を満たしています。ベージュの石張りの西洋風の外観が特徴的です。地上11階建てで、エレベーターは1基設置されています。基準階面積は約20坪のコンパクトなオフィスです。1フロア1テナント仕様で、賃室内に専用トイレと給湯設備があり、使い勝手も良好です。
無料相談で理想のオフィスを見つけましょう
東京で賃貸オフィスをお探しなら、仲介手数料0円の東京オフィスチェックにお任せください。
移転をお考えの方も、お迷いの方も、メールフォームやお電話でお気軽にご相談ください。
YAHATA汐留ビル のアクセス
YAHATA汐留ビル の募集中区画
| 階数 | 面積(坪) | 賃料(円) | 共益費(円) | 預託金 | 入居可能日 | 検討リスト | 詳細 |
|---|
この区画にオススメのレイアウト
-
オフィスサンプルレイアウト98
- 広さ
- 14.7坪(49㎡)
- 会議室
- あり
- 従業員数
- 4
-
オフィスサンプルレイアウト70
- 広さ
- 14.4坪(48㎡)
- 会議室
- あり
- 従業員数
- 5
-
オフィスサンプルレイアウト64
- 広さ
- 16.8坪(56㎡)
- 会議室
- あり
- 従業員数
- 5
-
オフィスサンプルレイアウト61
- 広さ
- 15.6坪(52㎡)
- 会議室
- あり
- 従業員数
- 7
YAHATA汐留ビル の近隣のエリア・駅から探す
お問い合わせ
無料相談で理想のオフィスを見つけましょう
東京で賃貸オフィスをお探しなら、仲介手数料0円の東京オフィスチェックにお任せください。移転をお考えの方も、お迷いの方も、メールフォームやお電話でお気軽にご相談ください。

