- 物件番号
- 53404-86932
- 情報更新日
- 2025.11.14
| 階数 | 7 |
|---|---|
| 用途/仕様 | 事務所 |
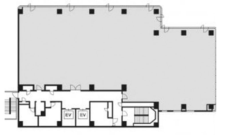
| 面積 | 140.28坪() |
| 賃料 | |
| 共益費 | |
| 預託金 | |
| 入居日 | |
| 所在地 | 東京都港区芝3-5-5 |
| 竣工 | 1991年5月 |
| 最寄り駅 |
都営浅草線 三田 徒歩 6分 都営三田線 芝公園 徒歩 1分 JR山手線 田町 徒歩 11分 |
| 構造 | SRC造 |
ポイント
芝公園駅より徒歩1分、港区芝3丁目にある賃貸オフィスビルです。グレーのタイル張りの外観で、1階にはコンビニが入居しており、来訪者の目印となります。1991年竣工で、鉄骨鉄筋コンクリート造(SRC造)です。地上8階建てで、エレベーターは2基設置されています。共用部に男女別トイレと給湯室があり、賃室内は余計な柱がないため、自在なレイアウトが可能です。
無料相談で理想のオフィスを見つけましょう
東京で賃貸オフィスをお探しなら、仲介手数料0円の東京オフィスチェックにお任せください。
移転をお考えの方も、お迷いの方も、メールフォームやお電話でお気軽にご相談ください。
NMF芝公園ビル のアクセス
NMF芝公園ビル の募集中区画
| 階数 | 面積(坪) | 賃料(円) | 共益費(円) | 預託金 | 入居可能日 | 検討リスト | 詳細 |
|---|
この区画にオススメのレイアウト
-
オフィスサンプルレイアウト122
- 広さ
- 159.4坪(527㎡)
- 会議室
- あり
- 従業員数
- 50
-
オフィスサンプルレイアウト121
- 広さ
- 189.5坪(627㎡)
- 会議室
- あり
- 従業員数
- 80
-
オフィスサンプルレイアウト113
- 広さ
- 113.4坪(375㎡)
- 会議室
- あり
- 従業員数
- 84
-
オフィスサンプルレイアウト107
- 広さ
- 260.7坪(862㎡)
- 会議室
- あり
- 従業員数
- 96
NMF芝公園ビル の条件に近い物件
NMF芝公園ビル の近隣のエリア・駅から探す
お問い合わせ
無料相談で理想のオフィスを見つけましょう
東京で賃貸オフィスをお探しなら、仲介手数料0円の東京オフィスチェックにお任せください。移転をお考えの方も、お迷いの方も、メールフォームやお電話でお気軽にご相談ください。


