- 物件番号
- 53320-87385
- 情報更新日
- 2025.11.14
| 階数 | 7 |
|---|---|
| 用途/仕様 | 事務所 |
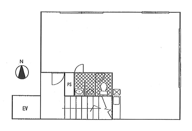
| 面積 | 19.40坪() |
| 賃料 | |
| 共益費 | |
| 預託金 | |
| 入居日 | |
| 所在地 | 東京都港区浜松町1-11-6 |
| 竣工 | 1993年8月 |
| 最寄り駅 |
都営大江戸線 大門 徒歩 4分 都営浅草線 大門 徒歩 4分 JR山手線 浜松町 徒歩 5分 |
| 構造 | SRC造 |
ポイント
大門駅より徒歩3分、港区浜松町1丁目にある賃貸オフィスビルです。1993年竣工で、新耐震基準を満たしています。地上7階建てで、エレベーターは1基設置されています。共用部に男女別トイレが設置されており、貸室内は長方形で、効率良くレイアウト可能です。第一京浜から少し入った立地で、周辺はマンションやオフィスビルが建ち並ぶ落ち着いたエリアです。
無料相談で理想のオフィスを見つけましょう
東京で賃貸オフィスをお探しなら、仲介手数料0円の東京オフィスチェックにお任せください。
移転をお考えの方も、お迷いの方も、メールフォームやお電話でお気軽にご相談ください。
吉和田ビル のアクセス
吉和田ビル の募集中区画
| 階数 | 面積(坪) | 賃料(円) | 共益費(円) | 預託金 | 入居可能日 | 検討リスト | 詳細 |
|---|
この区画にオススメのレイアウト
-
オフィスサンプルレイアウト98
- 広さ
- 14.7坪(49㎡)
- 会議室
- あり
- 従業員数
- 4
-
オフィスサンプルレイアウト70
- 広さ
- 14.4坪(48㎡)
- 会議室
- あり
- 従業員数
- 5
-
オフィスサンプルレイアウト64
- 広さ
- 16.8坪(56㎡)
- 会議室
- あり
- 従業員数
- 5
-
オフィスサンプルレイアウト61
- 広さ
- 15.6坪(52㎡)
- 会議室
- あり
- 従業員数
- 7
吉和田ビル の条件に近い物件
吉和田ビル の近隣のエリア・駅から探す
お問い合わせ
無料相談で理想のオフィスを見つけましょう
東京で賃貸オフィスをお探しなら、仲介手数料0円の東京オフィスチェックにお任せください。移転をお考えの方も、お迷いの方も、メールフォームやお電話でお気軽にご相談ください。


