- 物件番号
- 53288-65743
- 情報更新日
- 2024.12.25
| 階数 | 7 |
|---|---|
| 用途/仕様 | 事務所 |
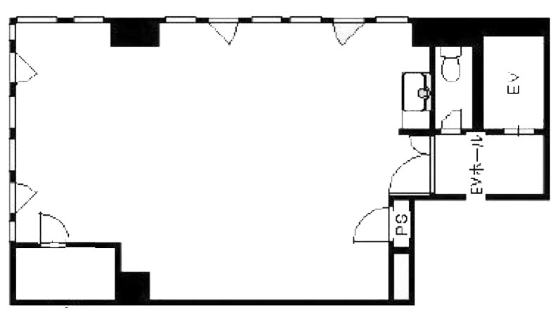
| 面積 | 18.09坪() |
| 賃料 | |
| 共益費 | |
| 預託金 | |
| 入居日 | |
| 所在地 | 東京都港区芝大門1-16-5 |
| 竣工 | 1989年7月 |
| 最寄り駅 |
都営大江戸線 大門 徒歩 1分 都営浅草線 大門 徒歩 1分 都営三田線 御成門 徒歩 8分 JR山手線 浜松町 徒歩 3分 |
| 構造 | S造 |
ポイント
都営浅草線・大江戸線大門駅よりA4番出口よりすぐ、港区芝大門1丁目にある賃貸オフィスビルです。1989年竣工で、新耐震基準を満たしています。地上9階建てで、エレベーターは1基設置されています。基準階面積は約18坪で、コンパクトなオフィスをお探しの方にぴったりです。個別空調を完備しており、セキュリティは機械警備で、安心してご利用いただけます。
無料相談で理想のオフィスを見つけましょう
東京で賃貸オフィスをお探しなら、仲介手数料0円の東京オフィスチェックにお任せください。
移転をお考えの方も、お迷いの方も、メールフォームやお電話でお気軽にご相談ください。
芝大門加藤ビル のアクセス
芝大門加藤ビル の募集中区画
| 階数 | 面積(坪) | 賃料(円) | 共益費(円) | 預託金 | 入居可能日 | 検討リスト | 詳細 |
|---|
この区画にオススメのレイアウト
-
オフィスサンプルレイアウト98
- 広さ
- 14.7坪(49㎡)
- 会議室
- あり
- 従業員数
- 4
-
オフィスサンプルレイアウト70
- 広さ
- 14.4坪(48㎡)
- 会議室
- あり
- 従業員数
- 5
-
オフィスサンプルレイアウト64
- 広さ
- 16.8坪(56㎡)
- 会議室
- あり
- 従業員数
- 5
-
オフィスサンプルレイアウト61
- 広さ
- 15.6坪(52㎡)
- 会議室
- あり
- 従業員数
- 7
芝大門加藤ビル の条件に近い物件
芝大門加藤ビル の近隣のエリア・駅から探す
お問い合わせ
無料相談で理想のオフィスを見つけましょう
東京で賃貸オフィスをお探しなら、仲介手数料0円の東京オフィスチェックにお任せください。移転をお考えの方も、お迷いの方も、メールフォームやお電話でお気軽にご相談ください。


