- 物件番号
- 53275-90792
- 情報更新日
- 2025.06.04
| 階数 | 4 |
|---|---|
| 用途/仕様 | 事務所 |
| 面積 | 95.53坪(315.79㎡) |
| 賃料 | |
| 共益費 | |
| 預託金 | |
| 入居日 | |
| 所在地 | 東京都港区芝公園2-9-5 |
| 竣工 | 1988年12月 |
| 最寄り駅 |
都営浅草線 大門 徒歩 7分 都営三田線 芝公園 徒歩 3分 JR山手線 浜松町 徒歩 7分 |
| 構造 | SRC造 |
ポイント
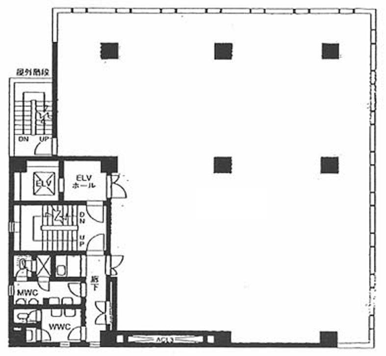
芝公園駅より徒歩4分、港区芝公園2丁目にある賃貸オフィスビルです。1988年竣工で、新耐震基準を満たしています。グレーのタイル貼りでシンプルな外観です。地上8階・地下1階建てで、エレベーターは1基設置されています。基準階面積は約95坪で、賃室内はL字型の造りです。OAフロアや個別空調など、設備面も充実しています。
無料相談で理想のオフィスを見つけましょう
東京で賃貸オフィスをお探しなら、仲介手数料0円の東京オフィスチェックにお任せください。
移転をお考えの方も、お迷いの方も、メールフォームやお電話でお気軽にご相談ください。
芝公園向陽ビル のアクセス
芝公園向陽ビル の募集中区画
| 階数 | 面積(坪) | 賃料(円) | 共益費(円) | 預託金 | 入居可能日 | 検討リスト | 詳細 |
|---|
この区画にオススメのレイアウト
-
オフィスサンプルレイアウト123
- 広さ
- 53.5坪(177㎡)
- 会議室
- あり
- 従業員数
- 11
-
オフィスサンプルレイアウト119
- 広さ
- 85坪(281㎡)
- 会議室
- あり
- 従業員数
- 31
-
オフィスサンプルレイアウト112
- 広さ
- 71.3坪(236㎡)
- 会議室
- あり
- 従業員数
- 33
-
オフィスサンプルレイアウト111
- 広さ
- 85.5坪(283㎡)
- 会議室
- あり
- 従業員数
- 31
芝公園向陽ビル の条件に近い物件
芝公園向陽ビル の近隣のエリア・駅から探す
お問い合わせ
無料相談で理想のオフィスを見つけましょう
東京で賃貸オフィスをお探しなら、仲介手数料0円の東京オフィスチェックにお任せください。移転をお考えの方も、お迷いの方も、メールフォームやお電話でお気軽にご相談ください。


