- 物件番号
- 53237-69843
- 情報更新日
- 2024.12.25
| 階数 | 2 |
|---|---|
| 用途/仕様 | 事務所 |
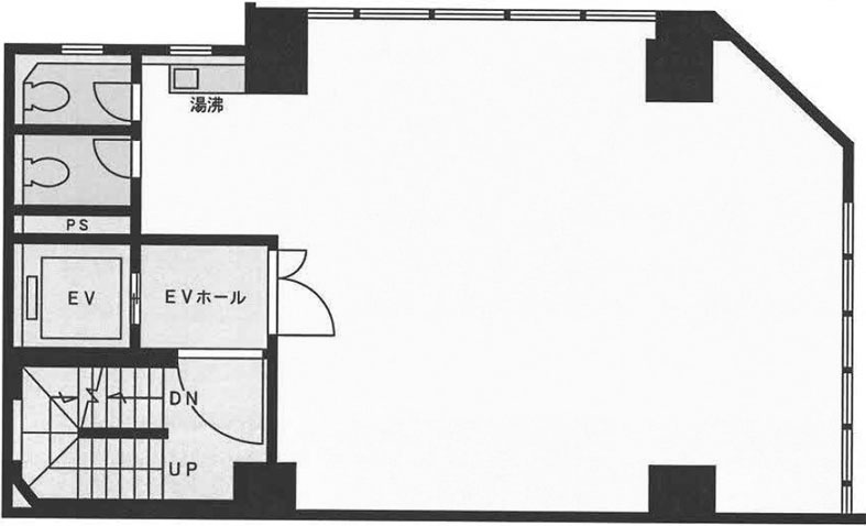
| 面積 | 23.52坪() |
| 賃料 | |
| 共益費 | |
| 預託金 | |
| 入居日 | |
| 所在地 | 東京都港区新橋5-33-9 |
| 竣工 | 1973年8月 |
| 最寄り駅 |
都営大江戸線 汐留 徒歩 9分 都営浅草線 大門 徒歩 8分 都営三田線 御成門 徒歩 4分 JR山手線 新橋 徒歩 7分 |
| 構造 | SRC造 |
ポイント
御成門駅より徒歩3分、港区新橋5丁目にある賃貸オフィスビルです。1973年竣工で、鉄骨鉄筋コンクリート造(SRC造) です。外観やエントランスホールは改修工事を実施しており、築年数を感じさせません。地上8階建てで、エレベーターは1基設置されています。角地の3面採光で、窓面が多く、明るいオフィス環境を実現できます。
無料相談で理想のオフィスを見つけましょう
東京で賃貸オフィスをお探しなら、仲介手数料0円の東京オフィスチェックにお任せください。
移転をお考えの方も、お迷いの方も、メールフォームやお電話でお気軽にご相談ください。
グリーンビル のアクセス
グリーンビル の募集中区画
| 階数 | 面積(坪) | 賃料(円) | 共益費(円) | 預託金 | 入居可能日 | 検討リスト | 詳細 |
|---|
この区画にオススメのレイアウト
-
オフィスサンプルレイアウト120
- 広さ
- 30.2坪(100㎡)
- 会議室
- あり
- 従業員数
- 12
-
オフィスサンプルレイアウト118
- 広さ
- 40.2坪(133㎡)
- 会議室
- なし
- 従業員数
- 20
-
オフィスサンプルレイアウト117
- 広さ
- 22.6坪(75㎡)
- 会議室
- あり
- 従業員数
- 11
-
オフィスサンプルレイアウト116
- 広さ
- 39.9坪(132㎡)
- 会議室
- あり
- 従業員数
- 11
グリーンビル の近隣のエリア・駅から探す
お問い合わせ
無料相談で理想のオフィスを見つけましょう
東京で賃貸オフィスをお探しなら、仲介手数料0円の東京オフィスチェックにお任せください。移転をお考えの方も、お迷いの方も、メールフォームやお電話でお気軽にご相談ください。


