- 物件番号
- 53076-86374
- 情報更新日
- 2025.11.14
| 階数 | 502 |
|---|---|
| 用途/仕様 | 事務所 |
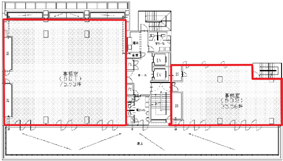
| 面積 | 35.56坪() |
| 賃料 | |
| 共益費 | |
| 預託金 | |
| 入居日 | |
| 所在地 | 東京都中央区銀座7-15-5 |
| 竣工 | 1970年1月 |
| 最寄り駅 |
日比谷線 東銀座 徒歩 5分 都営大江戸線 築地市場 徒歩 4分 JR山手線 新橋 徒歩 11分 |
| 構造 | SRC造 |
ポイント
共同ビル(銀座7丁目)は東京都中央区銀座7-15-5に位置するオフィスビルです。最寄り駅は日比谷線「東銀座」駅(徒歩5分)です。昭和通りからすぐのおすすめオフィス。共用部は綺麗に管理されており、至近にコンビニもあり便利。築地市場駅・東銀座駅・新橋駅の3駅が利用可能な好立地です。まずはお気軽にお問い合わせください。
無料相談で理想のオフィスを見つけましょう
東京で賃貸オフィスをお探しなら、仲介手数料0円の東京オフィスチェックにお任せください。
移転をお考えの方も、お迷いの方も、メールフォームやお電話でお気軽にご相談ください。
共同ビル(銀座7丁目) のアクセス
共同ビル(銀座7丁目) の募集中区画
| 階数 | 面積(坪) | 賃料(円) | 共益費(円) | 預託金 | 入居可能日 | 検討リスト | 詳細 |
|---|
この区画にオススメのレイアウト
-
オフィスサンプルレイアウト120
- 広さ
- 30.2坪(100㎡)
- 会議室
- あり
- 従業員数
- 12
-
オフィスサンプルレイアウト118
- 広さ
- 40.2坪(133㎡)
- 会議室
- なし
- 従業員数
- 20
-
オフィスサンプルレイアウト117
- 広さ
- 22.6坪(75㎡)
- 会議室
- あり
- 従業員数
- 11
-
オフィスサンプルレイアウト116
- 広さ
- 39.9坪(132㎡)
- 会議室
- あり
- 従業員数
- 11
共同ビル(銀座7丁目) の条件に近い物件
共同ビル(銀座7丁目) の近隣のエリア・駅から探す
お問い合わせ
無料相談で理想のオフィスを見つけましょう
東京で賃貸オフィスをお探しなら、仲介手数料0円の東京オフィスチェックにお任せください。移転をお考えの方も、お迷いの方も、メールフォームやお電話でお気軽にご相談ください。



