- 物件番号
- 53058-90247
- 情報更新日
- 2025.11.14
| 階数 | 4 |
|---|---|
| 用途/仕様 | 事務所 |
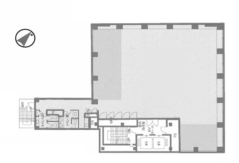
| 面積 | 89.58坪() |
| 賃料 | |
| 共益費 | |
| 預託金 | |
| 入居日 | |
| 所在地 | 東京都中央区銀座6-4-1 |
| 竣工 | 1995年8月 |
| 最寄り駅 |
丸ノ内線 銀座 徒歩 2分 JR山手線 有楽町 徒歩 4分 |
| 構造 | S造 |
ポイント
銀座駅より徒歩2分、中央区銀座6丁目にあるオフィスビルです。クラシカルで高級感のあるグレーの石造りの外観がひと際目を引きます。数奇屋通りとみゆき通りの角地に建ち、視認性も良好です。1995年竣工で、新耐震基準を満たしています。地上8階建てで、エレベーターは2基設置されています。床仕様はOAフロアで、レイアウトのしやすい形状です。
無料相談で理想のオフィスを見つけましょう
東京で賃貸オフィスをお探しなら、仲介手数料0円の東京オフィスチェックにお任せください。
移転をお考えの方も、お迷いの方も、メールフォームやお電話でお気軽にご相談ください。
東海堂銀座ビル のアクセス
東海堂銀座ビル の募集中区画
| 階数 | 面積(坪) | 賃料(円) | 共益費(円) | 預託金 | 入居可能日 | 検討リスト | 詳細 |
|---|
この区画にオススメのレイアウト
-
オフィスサンプルレイアウト123
- 広さ
- 53.5坪(177㎡)
- 会議室
- あり
- 従業員数
- 11
-
オフィスサンプルレイアウト119
- 広さ
- 85坪(281㎡)
- 会議室
- あり
- 従業員数
- 31
-
オフィスサンプルレイアウト112
- 広さ
- 71.3坪(236㎡)
- 会議室
- あり
- 従業員数
- 33
-
オフィスサンプルレイアウト111
- 広さ
- 85.5坪(283㎡)
- 会議室
- あり
- 従業員数
- 31
東海堂銀座ビル の条件に近い物件
東海堂銀座ビル の近隣のエリア・駅から探す
お問い合わせ
無料相談で理想のオフィスを見つけましょう
東京で賃貸オフィスをお探しなら、仲介手数料0円の東京オフィスチェックにお任せください。移転をお考えの方も、お迷いの方も、メールフォームやお電話でお気軽にご相談ください。



