- 物件番号
- 52858-73574
- 情報更新日
- 2024.12.25
| 階数 | 1003 |
|---|---|
| 用途/仕様 | 事務所 |
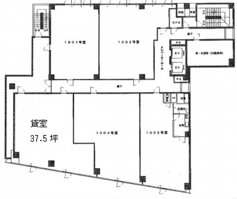
| 面積 | 37.50坪() |
| 賃料 | |
| 共益費 | |
| 預託金 | |
| 入居日 | |
| 所在地 | 東京都中央区築地2-3-4 |
| 竣工 | 1999年12月 |
| 最寄り駅 |
日比谷線 築地 徒歩 2分 有楽町線 新富町 徒歩 1分 JR京葉線 八丁堀 徒歩 7分 |
| 構造 | SRC造 |
ポイント
築地駅・新富町駅より徒歩1分、中央区築地2丁目にある賃貸オフィスビルです。1997年竣工で、新耐震基準を満たしています。地上10階・地下1階建てで、エレベーターは2基設置されています。新大橋通り沿いに面しており、ガラス張りのスタイリッシュな外観がひと際目を引きます。エントランスやエレベーターホールはホテルのような高級感があります。窓が多いため、賃室内が明るく開放的なところも魅力です。
無料相談で理想のオフィスを見つけましょう
東京で賃貸オフィスをお探しなら、仲介手数料0円の東京オフィスチェックにお任せください。
移転をお考えの方も、お迷いの方も、メールフォームやお電話でお気軽にご相談ください。
メトロシティ築地新富町 のアクセス
メトロシティ築地新富町 の募集中区画
| 階数 | 面積(坪) | 賃料(円) | 共益費(円) | 預託金 | 入居可能日 | 検討リスト | 詳細 | |
|---|---|---|---|---|---|---|---|---|
![]() |
1005 | 27.89 | 相談 | 込 | 6ヶ月 | 即 | 詳細 |
この区画にオススメのレイアウト
-
オフィスサンプルレイアウト120
- 広さ
- 30.2坪(100㎡)
- 会議室
- あり
- 従業員数
- 12
-
オフィスサンプルレイアウト118
- 広さ
- 40.2坪(133㎡)
- 会議室
- なし
- 従業員数
- 20
-
オフィスサンプルレイアウト117
- 広さ
- 22.6坪(75㎡)
- 会議室
- あり
- 従業員数
- 11
-
オフィスサンプルレイアウト116
- 広さ
- 39.9坪(132㎡)
- 会議室
- あり
- 従業員数
- 11
メトロシティ築地新富町 の近隣のエリア・駅から探す
お問い合わせ
無料相談で理想のオフィスを見つけましょう
東京で賃貸オフィスをお探しなら、仲介手数料0円の東京オフィスチェックにお任せください。移転をお考えの方も、お迷いの方も、メールフォームやお電話でお気軽にご相談ください。





