- 物件番号
- 52795-74077
- 情報更新日
- 2025.11.14
| 階数 | 1 |
|---|---|
| 用途/仕様 | 事務所 |
| 面積 | 27.54坪() |
| 賃料 | |
| 共益費 | |
| 預託金 | |
| 入居日 | |
| 所在地 | 東京都中央区新富1-16-8 |
| 竣工 | 1988年12月 |
| 最寄り駅 |
日比谷線 八丁堀 徒歩 6分 有楽町線 新富町 徒歩 2分 JR京葉線 八丁堀 徒歩 6分 |
| 構造 | SRC造 |
ポイント
新富町営和ビルは、東京都中央区新富1-16-8に位置するオフィスビルです。竣工は1988年で、最寄り駅は東京メトロ有楽町線「新富町」駅より徒歩2分、日比谷線「八丁堀」駅より徒歩6分です。 2017年にフルリニューアルされ、エントランス・共用部・室内ともに非常にきれいな物件です。ワンフロア約20坪で、男女別トイレや会議室の造作もあり、機能的なオフィス空間となっています。ぜひご検討ください。
無料相談で理想のオフィスを見つけましょう
東京で賃貸オフィスをお探しなら、仲介手数料0円の東京オフィスチェックにお任せください。
移転をお考えの方も、お迷いの方も、メールフォームやお電話でお気軽にご相談ください。
新富町営和ビル のアクセス
新富町営和ビル の募集中区画
| 階数 | 面積(坪) | 賃料(円) | 共益費(円) | 預託金 | 入居可能日 | 検討リスト | 詳細 |
|---|
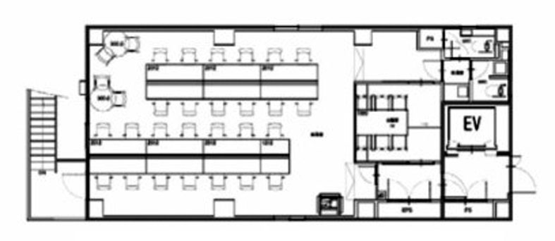
この区画にオススメのレイアウト
-
オフィスサンプルレイアウト120
- 広さ
- 30.2坪(100㎡)
- 会議室
- あり
- 従業員数
- 12
-
オフィスサンプルレイアウト118
- 広さ
- 40.2坪(133㎡)
- 会議室
- なし
- 従業員数
- 20
-
オフィスサンプルレイアウト117
- 広さ
- 22.6坪(75㎡)
- 会議室
- あり
- 従業員数
- 11
-
オフィスサンプルレイアウト116
- 広さ
- 39.9坪(132㎡)
- 会議室
- あり
- 従業員数
- 11
新富町営和ビル の条件に近い物件
新富町営和ビル の近隣のエリア・駅から探す
お問い合わせ
無料相談で理想のオフィスを見つけましょう
東京で賃貸オフィスをお探しなら、仲介手数料0円の東京オフィスチェックにお任せください。移転をお考えの方も、お迷いの方も、メールフォームやお電話でお気軽にご相談ください。




