- 物件番号
- 52696-93552
- 情報更新日
- 2025.11.14
| 階数 | 2 |
|---|---|
| 用途/仕様 | 事務所 |
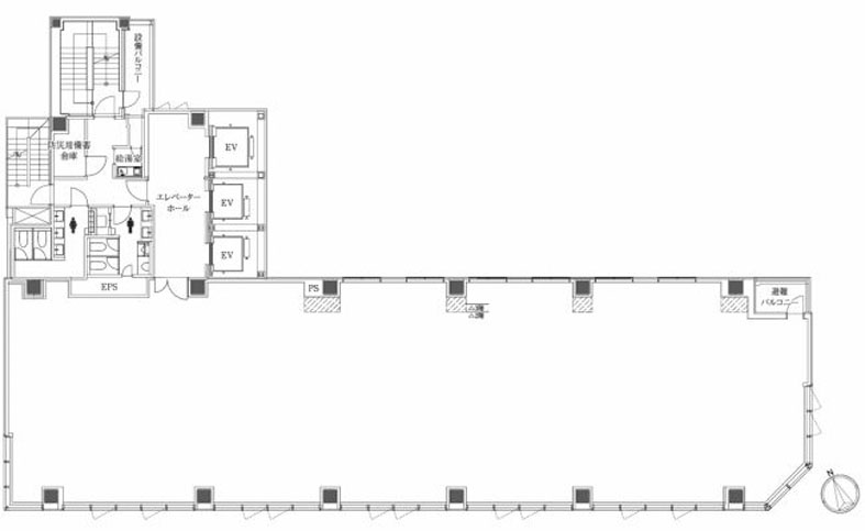
| 面積 | 124.80坪() |
| 賃料 | |
| 共益費 | |
| 預託金 | |
| 入居日 | |
| 所在地 | 東京都中央区八丁堀1-5-1 |
| 竣工 | 2017年8月 |
| 最寄り駅 |
銀座線 日本橋 徒歩 7分 日比谷線 八丁堀 徒歩 4分 東西線 茅場町 徒歩 6分 都営浅草線 宝町 徒歩 6分 JR山手線 東京 徒歩 10分 |
| 構造 | S造 |
ポイント
八丁堀駅から徒歩4分、中央区八丁堀1丁目に位置する賃貸オフィスビルです。2017年竣工、地下1階・地上10階建てで、エレベーターは2基設置されています。賃室は1フロア約125坪の広々とした大型空間です。八重洲通りに面し、3方向採光の明るく開放的な執務空間です。屋上のテラスや入居者専用の喫煙室が併設されるなど、従業員にとっても働きやすいオフィス環境が整っています。
無料相談で理想のオフィスを見つけましょう
東京で賃貸オフィスをお探しなら、仲介手数料0円の東京オフィスチェックにお任せください。
移転をお考えの方も、お迷いの方も、メールフォームやお電話でお気軽にご相談ください。
オリックス八重洲通ビル のアクセス
オリックス八重洲通ビル の募集中区画
| 階数 | 面積(坪) | 賃料(円) | 共益費(円) | 預託金 | 入居可能日 | 検討リスト | 詳細 |
|---|
この区画にオススメのレイアウト
-
オフィスサンプルレイアウト122
- 広さ
- 159.4坪(527㎡)
- 会議室
- あり
- 従業員数
- 50
-
オフィスサンプルレイアウト121
- 広さ
- 189.5坪(627㎡)
- 会議室
- あり
- 従業員数
- 80
-
オフィスサンプルレイアウト113
- 広さ
- 113.4坪(375㎡)
- 会議室
- あり
- 従業員数
- 84
-
オフィスサンプルレイアウト107
- 広さ
- 260.7坪(862㎡)
- 会議室
- あり
- 従業員数
- 96
オリックス八重洲通ビル の条件に近い物件
オリックス八重洲通ビル の近隣のエリア・駅から探す
お問い合わせ
無料相談で理想のオフィスを見つけましょう
東京で賃貸オフィスをお探しなら、仲介手数料0円の東京オフィスチェックにお任せください。移転をお考えの方も、お迷いの方も、メールフォームやお電話でお気軽にご相談ください。





