- 物件番号
- 52473-70657
- 情報更新日
- 2025.11.14
| 階数 | 2 |
|---|---|
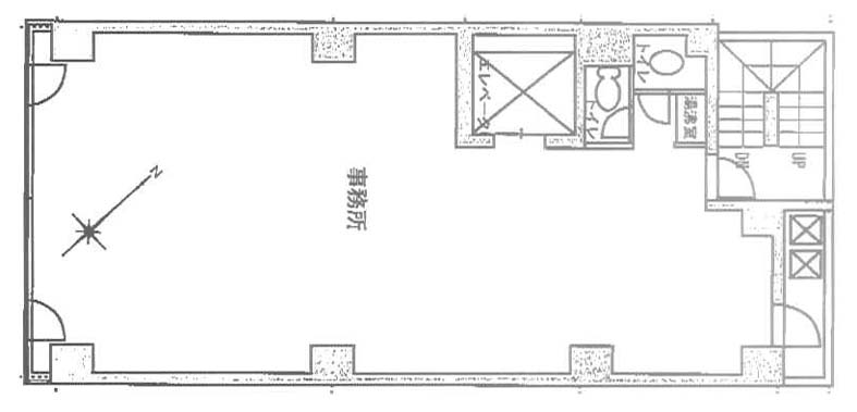
| 用途/仕様 | 事務所 |
| 面積 | 24.72坪() |
| 賃料 | |
| 共益費 | |
| 預託金 | |
| 入居日 | |
| 所在地 | 東京都中央区日本橋蛎殻町1-38-4 |
| 竣工 | 1991年12月 |
| 最寄り駅 |
日比谷線 人形町 徒歩 5分 東西線 茅場町 徒歩 7分 半蔵門線 水天宮前 徒歩 1分 都営浅草線 人形町 徒歩 7分 |
| 構造 | RC造 |
ポイント
村上ビルは、東京都中央区日本橋蛎殻町1-38-4に位置するオフィスビルです。竣工は1991年、最寄り駅は東京メトロ半蔵門線「水天宮前」駅より徒歩1分。 人形町駅・浜町駅・茅場町駅も徒歩圏内の利便性の高い立地。2008年にリニューアル済みで、男女別トイレ完備の長方形のオフィスはレイアウトがしやすい構造です。ぜひ一度ご内見ください。
無料相談で理想のオフィスを見つけましょう
東京で賃貸オフィスをお探しなら、仲介手数料0円の東京オフィスチェックにお任せください。
移転をお考えの方も、お迷いの方も、メールフォームやお電話でお気軽にご相談ください。
村上ビル のアクセス
村上ビル の募集中区画
| 階数 | 面積(坪) | 賃料(円) | 共益費(円) | 預託金 | 入居可能日 | 検討リスト | 詳細 |
|---|
この区画にオススメのレイアウト
-
オフィスサンプルレイアウト120
- 広さ
- 30.2坪(100㎡)
- 会議室
- あり
- 従業員数
- 12
-
オフィスサンプルレイアウト118
- 広さ
- 40.2坪(133㎡)
- 会議室
- なし
- 従業員数
- 20
-
オフィスサンプルレイアウト117
- 広さ
- 22.6坪(75㎡)
- 会議室
- あり
- 従業員数
- 11
-
オフィスサンプルレイアウト116
- 広さ
- 39.9坪(132㎡)
- 会議室
- あり
- 従業員数
- 11
村上ビル の近隣のエリア・駅から探す
お問い合わせ
無料相談で理想のオフィスを見つけましょう
東京で賃貸オフィスをお探しなら、仲介手数料0円の東京オフィスチェックにお任せください。移転をお考えの方も、お迷いの方も、メールフォームやお電話でお気軽にご相談ください。



