- 物件番号
- 52424-77848
- 情報更新日
- 2025.11.14
| 階数 | 2A |
|---|---|
| 用途/仕様 | その他 |
| 面積 | 46.46坪() |
| 賃料 | |
| 共益費 | |
| 預託金 | |
| 入居日 | |
| 所在地 | 東京都中央区日本橋堀留町1-5-7 |
| 竣工 | 1976年3月 |
| 最寄り駅 |
銀座線 三越前 徒歩 7分 日比谷線 小伝馬町 徒歩 5分 日比谷線 人形町 徒歩 4分 JR総武本線 新日本橋 徒歩 7分 |
| 構造 | SRC造 |
ポイント
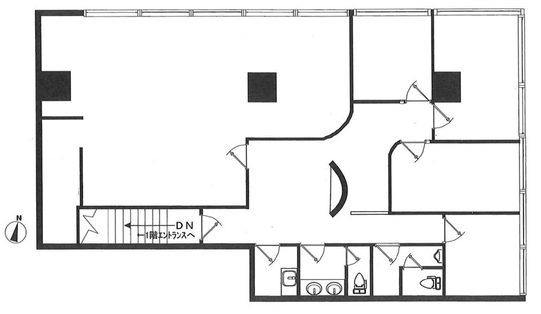
中央区日本橋堀留町1丁目にある賃貸オフィスビルです。貸付面積は約30坪で、日比谷線「小伝馬町駅」から徒歩5分とアクセス抜群です。他にも日比谷線人形町駅やJR総武本線新日本橋駅など、複数駅利用可能です。角地にあるので非常に採光が良好です。水回りが全て貸室外にあるので有効的にレイアウトできそうです。周囲にはコンビニや飲食店も多くございます。9階建ての建物でエレベーターもございます。中央区、「日本橋堀留町エリア」でオフィスをお探しの企業様は是非ご検討ください。
無料相談で理想のオフィスを見つけましょう
東京で賃貸オフィスをお探しなら、仲介手数料0円の東京オフィスチェックにお任せください。
移転をお考えの方も、お迷いの方も、メールフォームやお電話でお気軽にご相談ください。
YOUビル のアクセス
YOUビル の募集中区画
| 階数 | 面積(坪) | 賃料(円) | 共益費(円) | 預託金 | 入居可能日 | 検討リスト | 詳細 |
|---|
この区画にオススメのレイアウト
-
オフィスサンプルレイアウト120
- 広さ
- 30.2坪(100㎡)
- 会議室
- あり
- 従業員数
- 12
-
オフィスサンプルレイアウト118
- 広さ
- 40.2坪(133㎡)
- 会議室
- なし
- 従業員数
- 20
-
オフィスサンプルレイアウト117
- 広さ
- 22.6坪(75㎡)
- 会議室
- あり
- 従業員数
- 11
-
オフィスサンプルレイアウト116
- 広さ
- 39.9坪(132㎡)
- 会議室
- あり
- 従業員数
- 11
YOUビル の条件に近い物件
YOUビル の近隣のエリア・駅から探す
お問い合わせ
無料相談で理想のオフィスを見つけましょう
東京で賃貸オフィスをお探しなら、仲介手数料0円の東京オフィスチェックにお任せください。移転をお考えの方も、お迷いの方も、メールフォームやお電話でお気軽にご相談ください。





