- 物件番号
- 52414-82200
- 情報更新日
- 2025.11.14
| 階数 | 2 |
|---|---|
| 用途/仕様 | 事務所 |
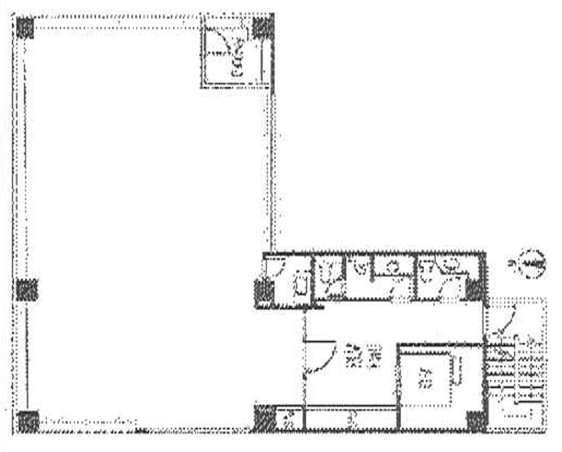
| 面積 | 46.07坪() |
| 賃料 | |
| 共益費 | |
| 預託金 | |
| 入居日 | |
| 所在地 | 東京都中央区日本橋大伝馬町1-8 |
| 竣工 | 2009年4月 |
| 最寄り駅 |
銀座線 三越前 徒歩 7分 日比谷線 小伝馬町 徒歩 2分 JR総武本線 新日本橋 徒歩 5分 |
| 構造 | S造 |
ポイント
中央区日本橋大伝馬町にある賃貸オフィスビルです。貸付面積は約46坪で、日比谷線「小伝馬町駅」から徒歩2分とアクセス抜群です。他にも銀座線三越前駅やJR総武本線新日本橋駅など、複数駅利用可能です。大伝馬本町通り沿いに立地し、角地に建ち窓が多いため貸室内は明るい雰囲気。近くには飲食店やコンビニ、スーパーなどが揃っています。9階建ての建物でエレベーターもございます。中央区、「日本橋大伝馬町エリア」でオフィスをお探しの企業様は是非ご検討ください。
無料相談で理想のオフィスを見つけましょう
東京で賃貸オフィスをお探しなら、仲介手数料0円の東京オフィスチェックにお任せください。
移転をお考えの方も、お迷いの方も、メールフォームやお電話でお気軽にご相談ください。
ACN日本橋大伝馬町ビル のアクセス
ACN日本橋大伝馬町ビル の募集中区画
| 階数 | 面積(坪) | 賃料(円) | 共益費(円) | 預託金 | 入居可能日 | 検討リスト | 詳細 |
|---|
この区画にオススメのレイアウト
-
オフィスサンプルレイアウト120
- 広さ
- 30.2坪(100㎡)
- 会議室
- あり
- 従業員数
- 12
-
オフィスサンプルレイアウト118
- 広さ
- 40.2坪(133㎡)
- 会議室
- なし
- 従業員数
- 20
-
オフィスサンプルレイアウト117
- 広さ
- 22.6坪(75㎡)
- 会議室
- あり
- 従業員数
- 11
-
オフィスサンプルレイアウト116
- 広さ
- 39.9坪(132㎡)
- 会議室
- あり
- 従業員数
- 11
ACN日本橋大伝馬町ビル の条件に近い物件
ACN日本橋大伝馬町ビル の近隣のエリア・駅から探す
お問い合わせ
無料相談で理想のオフィスを見つけましょう
東京で賃貸オフィスをお探しなら、仲介手数料0円の東京オフィスチェックにお任せください。移転をお考えの方も、お迷いの方も、メールフォームやお電話でお気軽にご相談ください。






