- 物件番号
- 52405-88110
- 情報更新日
- 2025.11.14
| 階数 | 2 |
|---|---|
| 用途/仕様 | 事務所・店舗 |
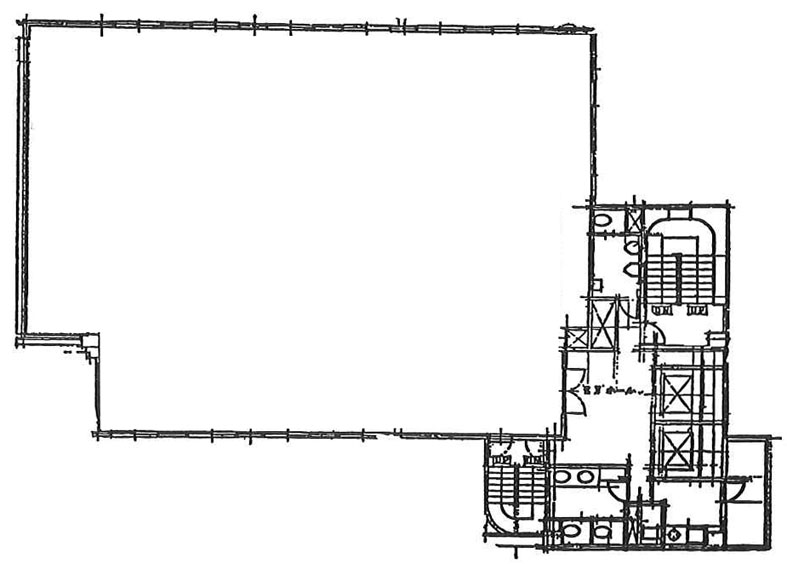
| 面積 | 104.00坪() |
| 賃料 | |
| 共益費 | |
| 預託金 | |
| 入居日 | |
| 所在地 | 東京都中央区日本橋大伝馬町12-2 |
| 竣工 | 1989年2月 |
| 最寄り駅 |
銀座線 三越前 徒歩 6分 日比谷線 小伝馬町 徒歩 2分 都営新宿線 馬喰横山 徒歩 5分 JR総武本線 新日本橋 徒歩 6分 |
| 構造 | SRC造 |
ポイント
中央区日本橋大伝馬町にある賃貸オフィスビルです。貸付面積は約105坪で、日比谷線「小伝馬町駅」から徒歩2分とアクセス抜群です。他にも都営新宿線馬喰横山駅やJR総武本線新日本橋駅など、複数駅利用可能です。内には一部柱がありますので、確認お願いします。男女別のトイレも完備しております。セキュリティは機械警備システムを導入しております。9階建ての建物でエレベーターもございます。中央区、「日本橋大伝馬町エリア」でオフィスをお探しの企業様は是非ご検討ください。
無料相談で理想のオフィスを見つけましょう
東京で賃貸オフィスをお探しなら、仲介手数料0円の東京オフィスチェックにお任せください。
移転をお考えの方も、お迷いの方も、メールフォームやお電話でお気軽にご相談ください。
セイショウ日本橋ビル のアクセス
セイショウ日本橋ビル の募集中区画
| 階数 | 面積(坪) | 賃料(円) | 共益費(円) | 預託金 | 入居可能日 | 検討リスト | 詳細 |
|---|
この区画にオススメのレイアウト
-
オフィスサンプルレイアウト122
- 広さ
- 159.4坪(527㎡)
- 会議室
- あり
- 従業員数
- 50
-
オフィスサンプルレイアウト121
- 広さ
- 189.5坪(627㎡)
- 会議室
- あり
- 従業員数
- 80
-
オフィスサンプルレイアウト113
- 広さ
- 113.4坪(375㎡)
- 会議室
- あり
- 従業員数
- 84
-
オフィスサンプルレイアウト107
- 広さ
- 260.7坪(862㎡)
- 会議室
- あり
- 従業員数
- 96
セイショウ日本橋ビル の条件に近い物件
セイショウ日本橋ビル の近隣のエリア・駅から探す
お問い合わせ
無料相談で理想のオフィスを見つけましょう
東京で賃貸オフィスをお探しなら、仲介手数料0円の東京オフィスチェックにお任せください。移転をお考えの方も、お迷いの方も、メールフォームやお電話でお気軽にご相談ください。





