- 物件番号
- 52374-66264
- 情報更新日
- 2024.12.25
| 階数 | 302 |
|---|---|
| 用途/仕様 | 事務所 |
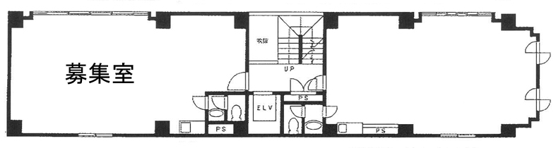
| 面積 | 18.73坪() |
| 賃料 | |
| 共益費 | |
| 預託金 | |
| 入居日 | |
| 所在地 | 東京都中央区日本橋富沢町10-10 |
| 竣工 | 1991年2月 |
| 最寄り駅 |
日比谷線 人形町 徒歩 6分 都営新宿線 馬喰横山 徒歩 3分 JR総武本線 馬喰町 徒歩 3分 |
| 構造 | RC造 |
ポイント
中央区日本橋富沢町にある賃貸オフィスビルです。貸付面積は約18坪で、都営新宿線「馬喰横山駅」から徒歩3分とアクセス抜群です。他にも日比谷線人形町駅やJR総武本線馬喰町駅など、複数駅利用可能です。清洲橋通りから水天宮通り寄りに入った立地です。グレー系の外装で角地の一辺が間口が広く窓面も多い構造です。セキュリティは機械警備システムを導入しております。6階建ての建物でエレベーターもございます。中央区、「日本橋富沢町エリア」でオフィスをお探しの企業様は是非ご検討ください。
無料相談で理想のオフィスを見つけましょう
東京で賃貸オフィスをお探しなら、仲介手数料0円の東京オフィスチェックにお任せください。
移転をお考えの方も、お迷いの方も、メールフォームやお電話でお気軽にご相談ください。
日本橋インテリジェントフラッツ のアクセス
日本橋インテリジェントフラッツ の募集中区画
| 階数 | 面積(坪) | 賃料(円) | 共益費(円) | 預託金 | 入居可能日 | 検討リスト | 詳細 |
|---|
この区画にオススメのレイアウト
-
オフィスサンプルレイアウト98
- 広さ
- 14.7坪(49㎡)
- 会議室
- あり
- 従業員数
- 4
-
オフィスサンプルレイアウト70
- 広さ
- 14.4坪(48㎡)
- 会議室
- あり
- 従業員数
- 5
-
オフィスサンプルレイアウト64
- 広さ
- 16.8坪(56㎡)
- 会議室
- あり
- 従業員数
- 5
-
オフィスサンプルレイアウト61
- 広さ
- 15.6坪(52㎡)
- 会議室
- あり
- 従業員数
- 7
日本橋インテリジェントフラッツ の条件に近い物件
日本橋インテリジェントフラッツ の近隣のエリア・駅から探す
お問い合わせ
無料相談で理想のオフィスを見つけましょう
東京で賃貸オフィスをお探しなら、仲介手数料0円の東京オフィスチェックにお任せください。移転をお考えの方も、お迷いの方も、メールフォームやお電話でお気軽にご相談ください。



