- 物件番号
- 52153-91539
- 情報更新日
- 2025.11.14
| 階数 | 3 |
|---|---|
| 用途/仕様 | 事務所 |
| 面積 | 130.93坪() |
| 賃料 | |
| 共益費 | |
| 預託金 | |
| 入居日 | |
| 所在地 | 東京都千代田区三番町1 |
| 竣工 | 1984年8月 |
| 最寄り駅 |
有楽町線 麹町 徒歩 10分 半蔵門線 半蔵門 徒歩 5分 |
| 構造 | SRC造 |
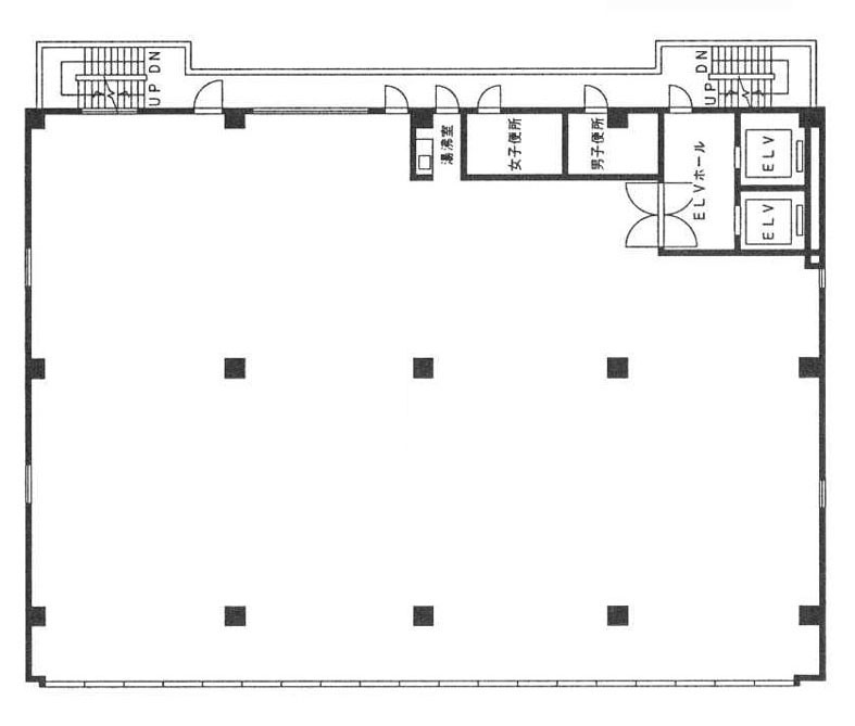
ポイント
千代田区三番町1丁目にある賃貸オフィスビルです。貸付面積は約100坪、半蔵門線「半蔵門駅」から徒歩5分とアクセス抜群です。内堀通り沿いに立地し、窓が大きく採光も十分に取れます。執務スペースは長方形に近い間取りで、レイアウトも容易です。男女別のトイレも完備しております。24時間使用可能です。8階建ての建物でエレベーターも2基ございます。千代田区、「三番町エリア」でオフィスをお探しの企業様は是非ご検討ください。
無料相談で理想のオフィスを見つけましょう
東京で賃貸オフィスをお探しなら、仲介手数料0円の東京オフィスチェックにお任せください。
移転をお考えの方も、お迷いの方も、メールフォームやお電話でお気軽にご相談ください。
KY三番町ビル のアクセス
KY三番町ビル の募集中区画
| 階数 | 面積(坪) | 賃料(円) | 共益費(円) | 預託金 | 入居可能日 | 検討リスト | 詳細 | |
|---|---|---|---|---|---|---|---|---|
![]() |
1 | 102.64 | 1,847,520 | 8ヶ月 | 即 | 詳細 |
この区画にオススメのレイアウト
-
オフィスサンプルレイアウト122
- 広さ
- 159.4坪(527㎡)
- 会議室
- あり
- 従業員数
- 50
-
オフィスサンプルレイアウト121
- 広さ
- 189.5坪(627㎡)
- 会議室
- あり
- 従業員数
- 80
-
オフィスサンプルレイアウト113
- 広さ
- 113.4坪(375㎡)
- 会議室
- あり
- 従業員数
- 84
-
オフィスサンプルレイアウト107
- 広さ
- 260.7坪(862㎡)
- 会議室
- あり
- 従業員数
- 96
KY三番町ビル の近隣のエリア・駅から探す
お問い合わせ
無料相談で理想のオフィスを見つけましょう
東京で賃貸オフィスをお探しなら、仲介手数料0円の東京オフィスチェックにお任せください。移転をお考えの方も、お迷いの方も、メールフォームやお電話でお気軽にご相談ください。








