- 物件番号
- 52146-85714
- 情報更新日
- 2025.11.14
| 階数 | 2AB |
|---|---|
| 用途/仕様 | 事務所 |
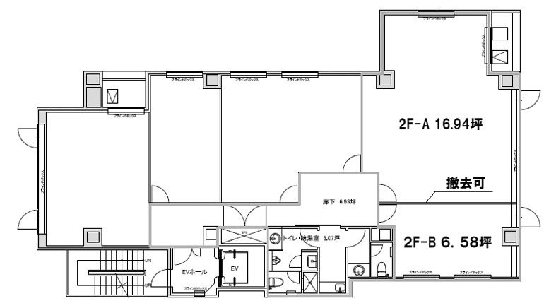
| 面積 | 29.03坪() |
| 賃料 | |
| 共益費 | |
| 預託金 | |
| 入居日 | |
| 所在地 | 東京都千代田区九段南4-2-11 |
| 竣工 | 2008年11月 |
| 最寄り駅 |
半蔵門線 半蔵門 徒歩 8分 都営新宿線 市ヶ谷 徒歩 2分 |
| 構造 | S造 |
ポイント
アビスタ市ヶ谷ビルは東京都千代田区九段南4-2-11に位置するオフィスビルです。竣工は2008年、最寄り駅は都営新宿線「市ヶ谷」駅徒歩2分。 築浅の希少な物件で、管理状態も良好なため、安心してご利用いただけます。ぜひ一度ご覧ください。
無料相談で理想のオフィスを見つけましょう
東京で賃貸オフィスをお探しなら、仲介手数料0円の東京オフィスチェックにお任せください。
移転をお考えの方も、お迷いの方も、メールフォームやお電話でお気軽にご相談ください。
アビスタ市ヶ谷ビル のアクセス
アビスタ市ヶ谷ビル の募集中区画
| 階数 | 面積(坪) | 賃料(円) | 共益費(円) | 預託金 | 入居可能日 | 検討リスト | 詳細 |
|---|
この区画にオススメのレイアウト
-
オフィスサンプルレイアウト120
- 広さ
- 30.2坪(100㎡)
- 会議室
- あり
- 従業員数
- 12
-
オフィスサンプルレイアウト118
- 広さ
- 40.2坪(133㎡)
- 会議室
- なし
- 従業員数
- 20
-
オフィスサンプルレイアウト117
- 広さ
- 22.6坪(75㎡)
- 会議室
- あり
- 従業員数
- 11
-
オフィスサンプルレイアウト116
- 広さ
- 39.9坪(132㎡)
- 会議室
- あり
- 従業員数
- 11
アビスタ市ヶ谷ビル の条件に近い物件
アビスタ市ヶ谷ビル の近隣のエリア・駅から探す
お問い合わせ
無料相談で理想のオフィスを見つけましょう
東京で賃貸オフィスをお探しなら、仲介手数料0円の東京オフィスチェックにお任せください。移転をお考えの方も、お迷いの方も、メールフォームやお電話でお気軽にご相談ください。






