- 物件番号
- 52106-78864
- 情報更新日
- 2025.11.14
| 階数 | 4 |
|---|---|
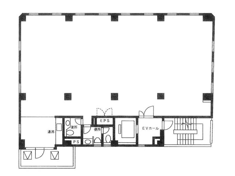
| 用途/仕様 | 事務所 |
| 面積 | 49.94坪() |
| 賃料 | |
| 共益費 | |
| 預託金 | |
| 入居日 | |
| 所在地 | 東京都千代田区九段北1-10-9 |
| 竣工 | 1993年3月 |
| 最寄り駅 |
半蔵門線 九段下 徒歩 2分 都営新宿線 九段下 徒歩 2分 |
| 構造 | RC造 |
ポイント
九段VIGASビル(九段ヴィカス)は東京都千代田区九段北1-10-9に位置するオフィスビルです。竣工は1993年、最寄り駅は東京メトロ半蔵門線「九段下」駅徒歩2分。 重厚感のあるデザインが特徴的で、管理状態も良好。2020年に水回りのリニューアルを実施したフロアもあり、快適に利用できます。ご興味のある方はぜひ一度ご内見ください。
無料相談で理想のオフィスを見つけましょう
東京で賃貸オフィスをお探しなら、仲介手数料0円の東京オフィスチェックにお任せください。
移転をお考えの方も、お迷いの方も、メールフォームやお電話でお気軽にご相談ください。
九段VIGASビル のアクセス
九段VIGASビル の募集中区画
| 階数 | 面積(坪) | 賃料(円) | 共益費(円) | 預託金 | 入居可能日 | 検討リスト | 詳細 |
|---|
この区画にオススメのレイアウト
-
オフィスサンプルレイアウト120
- 広さ
- 30.2坪(100㎡)
- 会議室
- あり
- 従業員数
- 12
-
オフィスサンプルレイアウト118
- 広さ
- 40.2坪(133㎡)
- 会議室
- なし
- 従業員数
- 20
-
オフィスサンプルレイアウト117
- 広さ
- 22.6坪(75㎡)
- 会議室
- あり
- 従業員数
- 11
-
オフィスサンプルレイアウト116
- 広さ
- 39.9坪(132㎡)
- 会議室
- あり
- 従業員数
- 11
九段VIGASビル の条件に近い物件
九段VIGASビル の近隣のエリア・駅から探す
お問い合わせ
無料相談で理想のオフィスを見つけましょう
東京で賃貸オフィスをお探しなら、仲介手数料0円の東京オフィスチェックにお任せください。移転をお考えの方も、お迷いの方も、メールフォームやお電話でお気軽にご相談ください。






