- 物件番号
- 52049-69251
- 情報更新日
- 2025.06.04
| 階数 | 2 |
|---|---|
| 用途/仕様 | 事務所 |
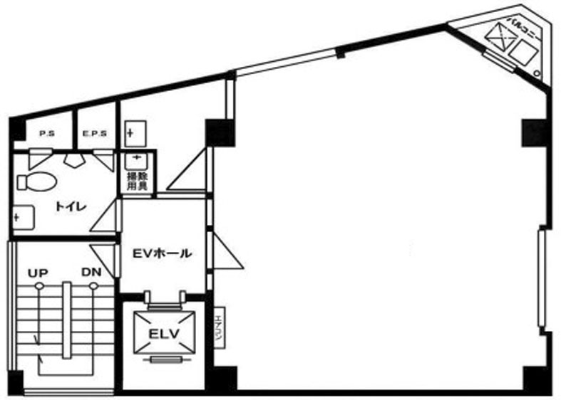
| 面積 | 22.50坪(74.38㎡) |
| 賃料 | |
| 共益費 | |
| 預託金 | |
| 入居日 | |
| 所在地 | 東京都千代田区神田淡路町2-4 |
| 竣工 | 1981年4月 |
| 最寄り駅 | 丸ノ内線 淡路町 徒歩 1分 |
| 構造 | SRC造 |
ポイント
千代田区神田淡路町2丁目にある賃貸オフィスビルです。貸付面積は約23坪、丸ノ内線「淡路町駅」から徒歩1分とアクセス抜群です。靖国通りから1本入ったところに立地し、白い壁の外観です。セキュリティは機械警備システムを導入しております。8階建ての建物でエレベーターも1基ございます。周囲にはコンビニや飲食店も多く、ランチには困りません。千代田区、「神田淡路町エリア」でオフィスをお探しの企業様は是非ご検討ください。
無料相談で理想のオフィスを見つけましょう
東京で賃貸オフィスをお探しなら、仲介手数料0円の東京オフィスチェックにお任せください。
移転をお考えの方も、お迷いの方も、メールフォームやお電話でお気軽にご相談ください。
ユニオンビル のアクセス
ユニオンビル の募集中区画
| 階数 | 面積(坪) | 賃料(円) | 共益費(円) | 預託金 | 入居可能日 | 検討リスト | 詳細 |
|---|
この区画にオススメのレイアウト
-
オフィスサンプルレイアウト120
- 広さ
- 30.2坪(100㎡)
- 会議室
- あり
- 従業員数
- 12
-
オフィスサンプルレイアウト118
- 広さ
- 40.2坪(133㎡)
- 会議室
- なし
- 従業員数
- 20
-
オフィスサンプルレイアウト117
- 広さ
- 22.6坪(75㎡)
- 会議室
- あり
- 従業員数
- 11
-
オフィスサンプルレイアウト116
- 広さ
- 39.9坪(132㎡)
- 会議室
- あり
- 従業員数
- 11
ユニオンビル の近隣のエリア・駅から探す
お問い合わせ
無料相談で理想のオフィスを見つけましょう
東京で賃貸オフィスをお探しなら、仲介手数料0円の東京オフィスチェックにお任せください。移転をお考えの方も、お迷いの方も、メールフォームやお電話でお気軽にご相談ください。





