- 物件番号
- 51862-69693
- 情報更新日
- 2025.11.12
| 階数 | 4 |
|---|---|
| 用途/仕様 | 事務所 |
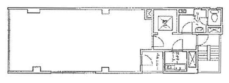
| 面積 | 23.20坪(76.69㎡) |
| 賃料 | 243,600円 |
| 共益費 | 46,400円 |
| 預託金 | 8ヶ月 |
| 入居日 | 3ヶ月以内 |
| 所在地 | 東京都千代田区神田司町2-17-14 |
| 竣工 | 1980年4月 |
| 最寄り駅 |
丸ノ内線 淡路町 徒歩 3分 都営新宿線 小川町 徒歩 3分 JR山手線 神田 徒歩 6分 |
| 構造 | RC造 |
ポイント
TATE神田は東京都千代田区神田司町2-17-14に位置するオフィスビルです。竣工は1980年、最寄り駅は東京メトロ丸ノ内線「淡路町」駅徒歩3分。 鉄筋コンクリート造、地上6階建てのオフィスビル。「小川町」駅・「淡路町」駅・「神田」駅が徒歩圏内のアクセス良好な立地です。機械警備・個別空調・24時間利用可能な設備を完備。平成20年にリニューアル済みで、快適なオフィス環境を提供します。ぜひお問い合わせください。
無料相談で理想のオフィスを見つけましょう
東京で賃貸オフィスをお探しなら、仲介手数料0円の東京オフィスチェックにお任せください。
移転をお考えの方も、お迷いの方も、メールフォームやお電話でお気軽にご相談ください。
TATE神田 のアクセス
TATE神田 の募集中区画
| 階数 | 面積(坪) | 賃料(円) | 共益費(円) | 預託金 | 入居可能日 | 検討リスト | 詳細 |
|---|
この区画にオススメのレイアウト
-
オフィスサンプルレイアウト120
- 広さ
- 30.2坪(100㎡)
- 会議室
- あり
- 従業員数
- 12
-
オフィスサンプルレイアウト118
- 広さ
- 40.2坪(133㎡)
- 会議室
- なし
- 従業員数
- 20
-
オフィスサンプルレイアウト117
- 広さ
- 22.6坪(75㎡)
- 会議室
- あり
- 従業員数
- 11
-
オフィスサンプルレイアウト116
- 広さ
- 39.9坪(132㎡)
- 会議室
- あり
- 従業員数
- 11
TATE神田 の近隣のエリア・駅から探す
お問い合わせ
無料相談で理想のオフィスを見つけましょう
東京で賃貸オフィスをお探しなら、仲介手数料0円の東京オフィスチェックにお任せください。移転をお考えの方も、お迷いの方も、メールフォームやお電話でお気軽にご相談ください。




