- 物件番号
- 51787-91772
- 情報更新日
- 2025.11.14
| 階数 | 8 |
|---|---|
| 用途/仕様 | 事務所 |
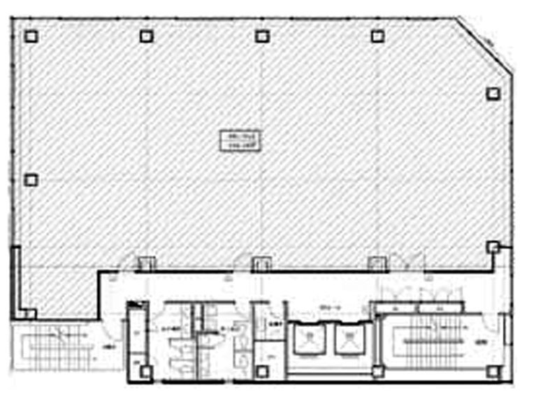
| 面積 | 104.59坪() |
| 賃料 | |
| 共益費 | |
| 預託金 | |
| 入居日 | |
| 所在地 | 東京都千代田区神田鍛冶町3-3-12 |
| 竣工 | 1970年1月 |
| 最寄り駅 |
銀座線 神田 徒歩 1分 JR山手線 神田 徒歩 3分 |
| 構造 | S造 |
ポイント
千代田区神田鍛冶町3丁目にある賃貸オフィスビルです。貸付面積は約105坪、銀座線「神田駅」から徒歩1分とアクセス抜群です。大通りに面しており、大きな窓と白い壁が特徴の物件です。駐車場が併設されており、車を利用される企業様にもおすすめです。周囲には飲食店もございます。8階建ての建物でエレベーターも1基ございます。千代田区、「鍛冶町エリア」でオフィスをお探しの企業様は是非ご検討ください。
無料相談で理想のオフィスを見つけましょう
東京で賃貸オフィスをお探しなら、仲介手数料0円の東京オフィスチェックにお任せください。
移転をお考えの方も、お迷いの方も、メールフォームやお電話でお気軽にご相談ください。
神田鍛冶町千歳ビル のアクセス
神田鍛冶町千歳ビル の募集中区画
| 階数 | 面積(坪) | 賃料(円) | 共益費(円) | 預託金 | 入居可能日 | 検討リスト | 詳細 |
|---|
この区画にオススメのレイアウト
-
オフィスサンプルレイアウト122
- 広さ
- 159.4坪(527㎡)
- 会議室
- あり
- 従業員数
- 50
-
オフィスサンプルレイアウト121
- 広さ
- 189.5坪(627㎡)
- 会議室
- あり
- 従業員数
- 80
-
オフィスサンプルレイアウト113
- 広さ
- 113.4坪(375㎡)
- 会議室
- あり
- 従業員数
- 84
-
オフィスサンプルレイアウト107
- 広さ
- 260.7坪(862㎡)
- 会議室
- あり
- 従業員数
- 96
神田鍛冶町千歳ビル の近隣のエリア・駅から探す
お問い合わせ
無料相談で理想のオフィスを見つけましょう
東京で賃貸オフィスをお探しなら、仲介手数料0円の東京オフィスチェックにお任せください。移転をお考えの方も、お迷いの方も、メールフォームやお電話でお気軽にご相談ください。







