- 物件番号
- 51749-63505
- 情報更新日
- 2024.12.25
| 階数 | 6 |
|---|---|
| 用途/仕様 | 事務所 |
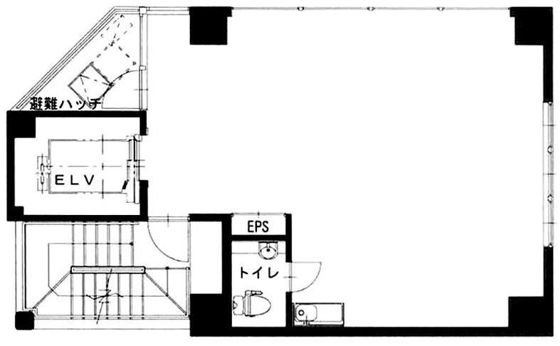
| 面積 | 15.76坪() |
| 賃料 | |
| 共益費 | |
| 預託金 | |
| 入居日 | |
| 所在地 | 東京都千代田区神田東松下町12-1 |
| 竣工 | 2010年2月 |
| 最寄り駅 |
都営新宿線 岩本町 徒歩 4分 JR山手線 秋葉原 徒歩 9分 JR山手線 神田 徒歩 3分 |
| 構造 | S造 |
ポイント
千代田区神田東松下町にある賃貸オフィスビルです。貸付面積は約16坪、山手線「神田駅」から徒歩3分とアクセス抜群です。他にも岩本町駅や秋葉原駅など、複数駅利用可能です。昭和通りから少し入った場所に立地し、ガラス張りの洗練されたデザインが特徴的です。マンションやホテル、オフィスビルが点在するエリアで、近くには銀行やコンビニがございます。12階建ての建物でエレベーターも1基ございます。千代田区、「神田東松下町エリア」でオフィスをお探しの企業様は是非ご検討ください。
無料相談で理想のオフィスを見つけましょう
東京で賃貸オフィスをお探しなら、仲介手数料0円の東京オフィスチェックにお任せください。
移転をお考えの方も、お迷いの方も、メールフォームやお電話でお気軽にご相談ください。
トナカイ神田タワー のアクセス
トナカイ神田タワー の募集中区画
| 階数 | 面積(坪) | 賃料(円) | 共益費(円) | 預託金 | 入居可能日 | 検討リスト | 詳細 |
|---|
この区画にオススメのレイアウト
-
オフィスサンプルレイアウト98
- 広さ
- 14.7坪(49㎡)
- 会議室
- あり
- 従業員数
- 4
-
オフィスサンプルレイアウト70
- 広さ
- 14.4坪(48㎡)
- 会議室
- あり
- 従業員数
- 5
-
オフィスサンプルレイアウト64
- 広さ
- 16.8坪(56㎡)
- 会議室
- あり
- 従業員数
- 5
-
オフィスサンプルレイアウト61
- 広さ
- 15.6坪(52㎡)
- 会議室
- あり
- 従業員数
- 7
トナカイ神田タワー の近隣のエリア・駅から探す
お問い合わせ
無料相談で理想のオフィスを見つけましょう
東京で賃貸オフィスをお探しなら、仲介手数料0円の東京オフィスチェックにお任せください。移転をお考えの方も、お迷いの方も、メールフォームやお電話でお気軽にご相談ください。






