- 物件番号
- 51740-81557
- 情報更新日
- 2025.11.14
| 階数 | 4 |
|---|---|
| 用途/仕様 | 事務所 |
| 面積 | 44.15坪() |
| 賃料 | |
| 共益費 | |
| 預託金 | |
| 入居日 | |
| 所在地 | 東京都千代田区神田須田町2-2-5 |
| 竣工 | 1983年7月 |
| 最寄り駅 |
銀座線 神田 徒歩 2分 都営新宿線 岩本町 徒歩 3分 JR山手線 神田 徒歩 5分 |
| 構造 | SRC造 |
ポイント
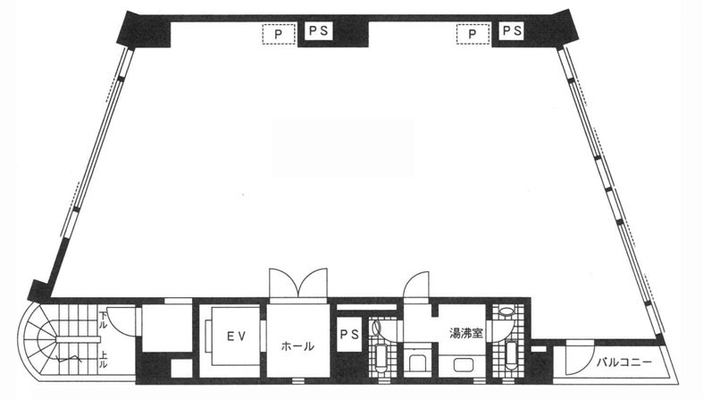
Cocoro Kanda Bldg.は東京都千代田区神田須田町2-2-5に位置するオフィスビルです。竣工は1983年、最寄り駅は東京メトロ銀座線「神田」駅徒歩2分。 ベージュ色の外観で、エントランスは白×エメラルドグリーンにリニューアルされ、清潔感のある印象。貸室は台形の間取りで、フロアによっては天井を抜いて開放感を演出しています。神田駅・秋葉原駅・淡路町駅・小川町駅が利用可能な利便性の高い物件です。
無料相談で理想のオフィスを見つけましょう
東京で賃貸オフィスをお探しなら、仲介手数料0円の東京オフィスチェックにお任せください。
移転をお考えの方も、お迷いの方も、メールフォームやお電話でお気軽にご相談ください。
Cocoro Kanda Bldg. のアクセス
Cocoro Kanda Bldg. の募集中区画
| 階数 | 面積(坪) | 賃料(円) | 共益費(円) | 預託金 | 入居可能日 | 検討リスト | 詳細 |
|---|
この区画にオススメのレイアウト
-
オフィスサンプルレイアウト120
- 広さ
- 30.2坪(100㎡)
- 会議室
- あり
- 従業員数
- 12
-
オフィスサンプルレイアウト118
- 広さ
- 40.2坪(133㎡)
- 会議室
- なし
- 従業員数
- 20
-
オフィスサンプルレイアウト117
- 広さ
- 22.6坪(75㎡)
- 会議室
- あり
- 従業員数
- 11
-
オフィスサンプルレイアウト116
- 広さ
- 39.9坪(132㎡)
- 会議室
- あり
- 従業員数
- 11
Cocoro Kanda Bldg. の近隣のエリア・駅から探す
お問い合わせ
無料相談で理想のオフィスを見つけましょう
東京で賃貸オフィスをお探しなら、仲介手数料0円の東京オフィスチェックにお任せください。移転をお考えの方も、お迷いの方も、メールフォームやお電話でお気軽にご相談ください。





