- 物件番号
- 51703-69732
- 情報更新日
- 2024.12.24
| 階数 | 3 |
|---|---|
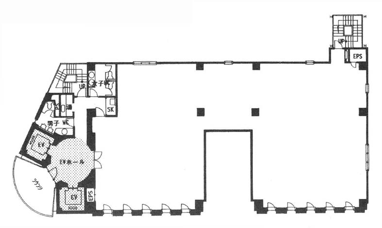
| 用途/仕様 | 事務所 |
| 面積 | 114.84坪() |
| 賃料 | |
| 共益費 | |
| 預託金 | |
| 入居日 | |
| 所在地 | 東京都千代田区神田紺屋町15 |
| 竣工 | 1970年1月 |
| 最寄り駅 |
銀座線 神田 徒歩 5分 日比谷線 小伝馬町 徒歩 7分 都営新宿線 岩本町 徒歩 5分 JR山手線 神田 徒歩 4分 |
| 構造 | SRC造 |
ポイント
グランファースト神田紺屋町は東京都千代田区神田紺屋町15に位置するオフィスビルです。最寄り駅は東京メトロ銀座線「神田」駅徒歩5分。 1993年竣工の新耐震基準適合オフィスビル。神田駅徒歩4分、岩本町駅・新日本橋駅・小伝馬町駅・秋葉原駅も利用可能な利便性の高い立地。貸主によるセットアップオフィス仕様のため、入居時の内装コストを大幅に削減可能。デザイン性の高いオフィス空間が魅力です。
無料相談で理想のオフィスを見つけましょう
東京で賃貸オフィスをお探しなら、仲介手数料0円の東京オフィスチェックにお任せください。
移転をお考えの方も、お迷いの方も、メールフォームやお電話でお気軽にご相談ください。
グランファースト神田紺屋町 のアクセス
グランファースト神田紺屋町 の募集中区画
| 階数 | 面積(坪) | 賃料(円) | 共益費(円) | 預託金 | 入居可能日 | 検討リスト | 詳細 |
|---|
この区画にオススメのレイアウト
-
オフィスサンプルレイアウト122
- 広さ
- 159.4坪(527㎡)
- 会議室
- あり
- 従業員数
- 50
-
オフィスサンプルレイアウト121
- 広さ
- 189.5坪(627㎡)
- 会議室
- あり
- 従業員数
- 80
-
オフィスサンプルレイアウト113
- 広さ
- 113.4坪(375㎡)
- 会議室
- あり
- 従業員数
- 84
-
オフィスサンプルレイアウト107
- 広さ
- 260.7坪(862㎡)
- 会議室
- あり
- 従業員数
- 96
グランファースト神田紺屋町 の近隣のエリア・駅から探す
お問い合わせ
無料相談で理想のオフィスを見つけましょう
東京で賃貸オフィスをお探しなら、仲介手数料0円の東京オフィスチェックにお任せください。移転をお考えの方も、お迷いの方も、メールフォームやお電話でお気軽にご相談ください。







