- 物件番号
- 51628-69230
- 情報更新日
- 2024.12.25
| 階数 | 5 |
|---|---|
| 用途/仕様 | 事務所・店舗 |
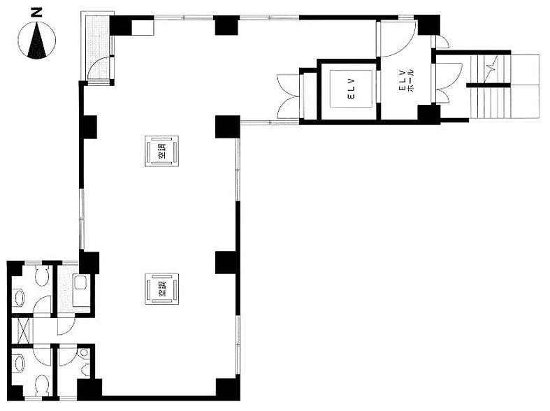
| 面積 | 22.46坪() |
| 賃料 | |
| 共益費 | |
| 預託金 | |
| 入居日 | |
| 所在地 | 東京都千代田区神田松永町17-3 |
| 竣工 | 2006年7月 |
| 最寄り駅 |
銀座線 末広町 徒歩 7分 日比谷線 秋葉原 徒歩 3分 都営新宿線 岩本町 徒歩 7分 JR山手線 秋葉原 徒歩 3分 |
| 構造 | RC造 |
ポイント
千代田区神田松永町にある賃貸オフィスビルです。貸付面積は約22坪、東京メトロ銀座線「末広町駅」から徒歩7分のアクセスです。他にも秋葉原駅や岩本町駅など、複数駅利用可能です。大通りに面しており、1フロア1テナント仕様になっております。7階建ての建物でエレベーターも1基ございます。千代田区、「神田松永町エリア」でオフィスをお探しの企業様は是非ご検討ください。
無料相談で理想のオフィスを見つけましょう
東京で賃貸オフィスをお探しなら、仲介手数料0円の東京オフィスチェックにお任せください。
移転をお考えの方も、お迷いの方も、メールフォームやお電話でお気軽にご相談ください。
アサヒKビル のアクセス
アサヒKビル の募集中区画
| 階数 | 面積(坪) | 賃料(円) | 共益費(円) | 預託金 | 入居可能日 | 検討リスト | 詳細 |
|---|
この区画にオススメのレイアウト
-
オフィスサンプルレイアウト120
- 広さ
- 30.2坪(100㎡)
- 会議室
- あり
- 従業員数
- 12
-
オフィスサンプルレイアウト118
- 広さ
- 40.2坪(133㎡)
- 会議室
- なし
- 従業員数
- 20
-
オフィスサンプルレイアウト117
- 広さ
- 22.6坪(75㎡)
- 会議室
- あり
- 従業員数
- 11
-
オフィスサンプルレイアウト116
- 広さ
- 39.9坪(132㎡)
- 会議室
- あり
- 従業員数
- 11
アサヒKビル の近隣のエリア・駅から探す
お問い合わせ
無料相談で理想のオフィスを見つけましょう
東京で賃貸オフィスをお探しなら、仲介手数料0円の東京オフィスチェックにお任せください。移転をお考えの方も、お迷いの方も、メールフォームやお電話でお気軽にご相談ください。




