- 物件番号
- 51606-91276
- 情報更新日
- 2025.11.14
| 階数 | 103 |
|---|---|
| 用途/仕様 | 事務所・店舗 |
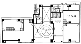
| 面積 | 12.34坪() |
| 賃料 | |
| 共益費 | |
| 預託金 | |
| 入居日 | |
| 所在地 | 東京都千代田区外神田4-6-7 |
| 竣工 | 1994年9月 |
| 最寄り駅 |
銀座線 末広町 徒歩 1分 JR山手線 秋葉原 徒歩 5分 |
| 構造 | SRC造 |
ポイント
カンダエイトビルは東京都千代田区外神田4-6-7に位置するオフィスビルです。竣工は1994年、最寄り駅は東京メトロ銀座線「末広町」駅徒歩1分。 中央通りの交差点近くの視認性の高い立地。駐車場完備。秋葉原も徒歩圏内でアクセス良好。パーテーション不要の間取りで、コストを抑えられる点が魅力です。
無料相談で理想のオフィスを見つけましょう
東京で賃貸オフィスをお探しなら、仲介手数料0円の東京オフィスチェックにお任せください。
移転をお考えの方も、お迷いの方も、メールフォームやお電話でお気軽にご相談ください。
カンダエイトビル のアクセス
カンダエイトビル の募集中区画
| 階数 | 面積(坪) | 賃料(円) | 共益費(円) | 預託金 | 入居可能日 | 検討リスト | 詳細 |
|---|
この区画にオススメのレイアウト
-
オフィスサンプルレイアウト98
- 広さ
- 14.7坪(49㎡)
- 会議室
- あり
- 従業員数
- 4
-
オフィスサンプルレイアウト70
- 広さ
- 14.4坪(48㎡)
- 会議室
- あり
- 従業員数
- 5
-
オフィスサンプルレイアウト64
- 広さ
- 16.8坪(56㎡)
- 会議室
- あり
- 従業員数
- 5
-
オフィスサンプルレイアウト61
- 広さ
- 15.6坪(52㎡)
- 会議室
- あり
- 従業員数
- 7
カンダエイトビル の近隣のエリア・駅から探す
お問い合わせ
無料相談で理想のオフィスを見つけましょう
東京で賃貸オフィスをお探しなら、仲介手数料0円の東京オフィスチェックにお任せください。移転をお考えの方も、お迷いの方も、メールフォームやお電話でお気軽にご相談ください。







