- 物件番号
- 56276-79096
- 情報更新日
- 2025.11.14
| 階数 | 1+2 |
|---|---|
| 用途/仕様 | 事務所・店舗 |
| 面積 | 161.86坪() |
| 賃料 | |
| 共益費 | |
| 預託金 | |
| 入居日 | |
| 所在地 | 東京都新宿区歌舞伎町1-1-17 |
| 竣工 | 1988年3月 |
| 最寄り駅 |
丸ノ内線 新宿三丁目 徒歩 2分 JR山手線 新宿 徒歩 5分 |
| 構造 | RC造 |
ポイント
東京都新宿区歌舞伎町1-1-17に位置するオフィスビルです。竣工は1988年、最寄り駅は丸ノ内線「新宿三丁目駅」徒歩2分。「新宿」駅周辺でも随一の人通りがあり、視認性の高い立地。全面ミラー加工の外観が特徴的で、セキュリティや男女別トイレなど設備面も充実。店舗利用にもおすすめです。
無料相談で理想のオフィスを見つけましょう
東京で賃貸オフィスをお探しなら、仲介手数料0円の東京オフィスチェックにお任せください。
移転をお考えの方も、お迷いの方も、メールフォームやお電話でお気軽にご相談ください。
エキニア新宿ビル のアクセス
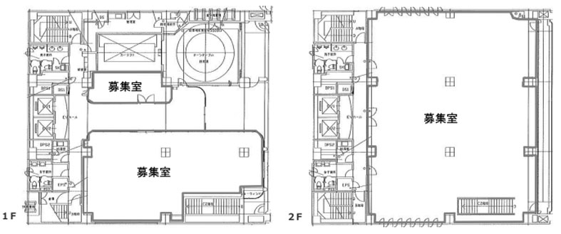
エキニア新宿ビル の募集中区画
| 階数 | 面積(坪) | 賃料(円) | 共益費(円) | 預託金 | 入居可能日 | 検討リスト | 詳細 | |
|---|---|---|---|---|---|---|---|---|
![]() |
1 | 51.60 | 12ヶ月 | 6ヶ月以内 | 詳細 |
この区画にオススメのレイアウト
-
オフィスサンプルレイアウト122
- 広さ
- 159.4坪(527㎡)
- 会議室
- あり
- 従業員数
- 50
-
オフィスサンプルレイアウト121
- 広さ
- 189.5坪(627㎡)
- 会議室
- あり
- 従業員数
- 80
-
オフィスサンプルレイアウト113
- 広さ
- 113.4坪(375㎡)
- 会議室
- あり
- 従業員数
- 84
-
オフィスサンプルレイアウト107
- 広さ
- 260.7坪(862㎡)
- 会議室
- あり
- 従業員数
- 96
エキニア新宿ビル の条件に近い物件
エキニア新宿ビル の近隣のエリア・駅から探す
お問い合わせ
無料相談で理想のオフィスを見つけましょう
東京で賃貸オフィスをお探しなら、仲介手数料0円の東京オフィスチェックにお任せください。移転をお考えの方も、お迷いの方も、メールフォームやお電話でお気軽にご相談ください。





