- 物件番号
- 51729-76852
| 階数 | 1階 |
|---|---|
| 用途/仕様 | 事務所・店舗 |
| 面積 | 28.70坪(94.88㎡) |
| 賃料 | |
| 共益費 | |
| 保証金/敷金 | |
| 入居日 | |
| 所在地 | 東京都千代田区神田須田町1-5 |
| 竣工 | 1984年8月 |
| 最寄り駅 |
東京メトロ銀座線 神田 徒歩 3分 東京メトロ丸ノ内線 淡路町 徒歩 3分 都営新宿線 小川町 徒歩 3分 JR山手線 秋葉原 徒歩 5分 JR山手線 神田 徒歩 5分 |
| 構造 | S造(鉄骨造) |
ポイント
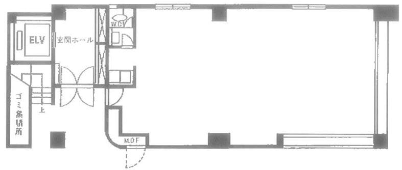
ディアマントビルは東京都千代田区神田須田町1-5に位置するオフィスビルです。最寄り駅は東京メトロ銀座線「神田」駅徒歩2分。 須田町交差点近くに立地し、水回りがエレベーターホール寄りにまとまっており、レイアウトしやすい間取りが魅力。周辺には老舗の蕎麦屋や料亭、和菓子屋があり、歴史を感じるエリアです。秋葉原・神田両エリアへのアクセスも良好です。
無料相談で理想のオフィスを見つけましょう
東京で賃貸オフィスをお探しなら、仲介手数料0円の東京オフィスチェックにお任せください。
移転をお考えの方も、お迷いの方も、メールフォームやお電話でお気軽にご相談ください。
ディアマントビル のアクセス
ディアマントビル の募集中区画
| 階数 | 面積 | 賃料 | 共益費 | 保証金/敷金 | 入居可能日 | 検討リスト | 詳細 |
|---|---|---|---|---|---|---|---|
| 10階 | 32.52坪 | 455,280円 | 97,560円 | 8ヶ月 | 2026/2/上 | 詳細 > ディアマントビル 10 (107.5㎡) |千代田区 の賃貸オフィス・セットアップオフィス |
この区画にオススメのレイアウト
-
オフィスサンプルレイアウト120
- 広さ
- 30.2坪(100㎡)
- 会議室
- あり
- 従業員数
- 12
-
オフィスサンプルレイアウト118
- 広さ
- 40.2坪(133㎡)
- 会議室
- なし
- 従業員数
- 20
-
オフィスサンプルレイアウト117
- 広さ
- 22.6坪(75㎡)
- 会議室
- あり
- 従業員数
- 11
-
オフィスサンプルレイアウト116
- 広さ
- 39.9坪(132㎡)
- 会議室
- あり
- 従業員数
- 11
ディアマントビル の条件に近い物件
-
神田佐久間町一丁目計画
東京都千代田区神田佐久間町1-9
- 面積
- 38.4坪 〜
- 空きフロア
- 16
- 最寄り駅
- 秋葉原 徒歩 3分
-
善幸ビル
東京都千代田区神田西福田町4-3
- 面積
- 19坪 〜
- 空きフロア
- 1
- 最寄り駅
- 神田 徒歩 5分
-
神田AKビル
東京都千代田区神田須田町1-24-22
- 面積
- 33.06坪 〜
- 空きフロア
- 1
- 最寄り駅
- 神田 徒歩 1分
-
岩本町寿共同ビル
東京都千代田区岩本町3-9-13
- 面積
- 15.13坪 〜
- 空きフロア
- 2
- 最寄り駅
- 岩本町 徒歩 1分
ディアマントビル の近隣のエリア・駅から探す
オフィス移転・物件探しを無料でサポートします
物件探しだけでは、オフィス移転は成功しません。
私たちは単なる「物件紹介会社」ではありません。オフィス移転にかかる費用総額を最小化する専門会社です。物件契約時の仲介手数料0円に加え、内装工事も中間マージンを排除した適正価格でご提案し、トータルコストを大幅に削減します。「希望の物件が見つからない」「移転費用を抑えたい」など、移転をお考えの方はメールまたはお電話でお気軽にご相談ください。





