- 物件番号
- 249203-249967
- 情報更新日
- 2025.06.04
| 階数 | 4 |
|---|---|
| 用途/仕様 | 事務所 |
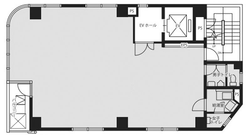
| 面積 | 28.21坪() |
| 賃料 | 相談 |
| 共益費 | 104,377円 |
| 預託金 | |
| 入居日 | 3ヶ月以内 |
| 所在地 | 〒107-0062 東京都港区南青山1-4-2 |
| 竣工 | 1987年8月 |
| 最寄り駅 |
銀座線 青山一丁目 徒歩 2分 営大江戸線 青山一丁目 徒歩 2分 代田線 乃木坂 徒歩 8分 |
| 構造 | SRC造 |
無料相談で理想のオフィスを見つけましょう
東京で賃貸オフィスをお探しなら、仲介手数料0円の東京オフィスチェックにお任せください。
移転をお考えの方も、お迷いの方も、メールフォームやお電話でお気軽にご相談ください。
南青山渡辺ビル のアクセス
南青山渡辺ビル の募集中区画
| 階数 | 面積(坪) | 賃料(円) | 共益費(円) | 預託金 | 入居可能日 | 検討リスト | 詳細 | |
|---|---|---|---|---|---|---|---|---|
![]() |
4 | 28.21 | 相談 | 104,377 | 3ヶ月以内 | 詳細 |
この区画にオススメのレイアウト
-
オフィスサンプルレイアウト120
- 広さ
- 30.2坪(100㎡)
- 会議室
- あり
- 従業員数
- 12
-
オフィスサンプルレイアウト118
- 広さ
- 40.2坪(133㎡)
- 会議室
- なし
- 従業員数
- 20
-
オフィスサンプルレイアウト117
- 広さ
- 22.6坪(75㎡)
- 会議室
- あり
- 従業員数
- 11
-
オフィスサンプルレイアウト116
- 広さ
- 39.9坪(132㎡)
- 会議室
- あり
- 従業員数
- 11
南青山渡辺ビル の近隣のエリア・駅から探す
お問い合わせ
無料相談で理想のオフィスを見つけましょう
東京で賃貸オフィスをお探しなら、仲介手数料0円の東京オフィスチェックにお任せください。移転をお考えの方も、お迷いの方も、メールフォームやお電話でお気軽にご相談ください。




