- 物件番号
- 248927
- 情報更新日
- 2025.06.03
| 所在地 | 〒103-0007 東京都中央区日本橋浜町2-16-5 |
|---|---|
| 竣工 | 1974年11月 |
| 最寄り駅 |
都営新宿線 浜町 徒歩 2分 比谷線 人形町 徒歩 5分 営浅草線 東日本橋 徒歩 6分 蔵門線 水天宮前 徒歩 7分 |
| 構造 | SRC造 |
東味ビル の募集中区画
| 階数 | 面積(坪) | 賃料(円) | 共益費(円) | 預託金 | 入居可能日 | 検討リスト | 詳細 | |
|---|---|---|---|---|---|---|---|---|
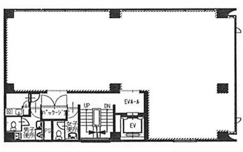
![]() |
201・202 | 47.20 | 519,200 | 94,400 | 10ヶ月 | 即 | 詳細 |
無料相談で理想のオフィスを見つけましょう
東京で賃貸オフィスをお探しなら、仲介手数料0円の東京オフィスチェックにお任せください。
移転をお考えの方も、お迷いの方も、メールフォームやお電話でお気軽にご相談ください。
東味ビル のアクセス
東味ビル の近隣のエリア・駅から探す
東味ビル の募集終了区画
| 階数 | 面積(坪) | 賃料(円) | 共益費(円) | 預託金 | 入居可能日 | 詳細 |
|---|
お問い合わせ
無料相談で理想のオフィスを見つけましょう
東京で賃貸オフィスをお探しなら、仲介手数料0円の東京オフィスチェックにお任せください。移転をお考えの方も、お迷いの方も、メールフォームやお電話でお気軽にご相談ください。




