- 物件番号
- 248842
| 所在地 | 東京都千代田区内神田2-16-9 |
|---|---|
| 竣工 | 1966年10月 |
| 最寄り駅 |
JR中央線(快速) 神田 徒歩 3分 東京メトロ丸ノ内線 淡路町 徒歩 4分 |
| 構造 | SRC造(鉄骨鉄筋コンクリート造) |
| 階数 | 地上9階/地下3階 |
| エレベータ | 2基 |
| 空調 | 個別空調 |
| トイレ | 男女別 |
| 警備 | 有人+機械警備 |
| 使用時間 | 24時間使用可 |
ポイント
センボービルは、東京都千代田区内神田2-16-9に所在する鉄骨鉄筋コンクリート造・地上9階地下3階建ての賃貸オフィスビルです。1966年10月に竣工し、神田警察通り沿いに面した視認性の高い立地にあります。
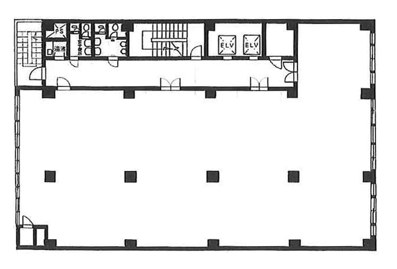
基準階面積は約114坪で、エレベーター2基、個別空調、男女別トイレ、機械警備を完備し、24時間利用が可能です。平成14年に耐震補強工事を完了しているほか、2018年には空調・トイレ・LED照明のリニューアル工事も実施済みで、天井高は2,500mmを確保しています。
JR神田駅より徒歩約3〜4分、東京メトロ丸ノ内線・淡路町駅や都営新宿線・小川町駅からも徒歩6分圏内にあり、複数路線の利用が可能な好立地です。
センボービル の募集中区画
現在、募集中の区画はありません
無料相談で理想のオフィスを見つけましょう
東京で賃貸オフィスをお探しなら、仲介手数料0円の東京オフィスチェックにお任せください。
移転をお考えの方も、お迷いの方も、メールフォームやお電話でお気軽にご相談ください。
センボービル のアクセス
センボービル の近隣のエリア・駅から探す
センボービル の募集終了区画
| 階数 | 面積(坪) | 賃料(円) | 共益費 | 保証金/敷金 | 入居可能日 | 詳細 |
|---|---|---|---|---|---|---|
| 3階 | 114.40坪 | ー | ー | ー | 募集終了 | 詳細 > センボービル 3 (378.18㎡) |内神田・鍛冶町エリア の賃貸オフィス・セットアップオフィス |
センボービル の条件に近い物件
オフィス移転・物件探しを無料でサポートします
物件探しだけでは、オフィス移転は成功しません。
私たちは単なる「物件紹介会社」ではありません。オフィス移転にかかる費用総額を最小化する専門会社です。物件契約時の仲介手数料0円に加え、内装工事も中間マージンを排除した適正価格でご提案し、トータルコストを大幅に削減します。「希望の物件が見つからない」「移転費用を抑えたい」など、移転をお考えの方はメールまたはお電話でお気軽にご相談ください。



