- 物件番号
- 236639-251242
| 階数 | 6階 |
|---|---|
| 用途/仕様 | 事務所 |
| 面積 | 38.46坪(127.14㎡) |
| 賃料 | 480,750円(12,500円/坪) |
| 共益費 | 96,150円 |
| 保証金/敷金 | 6ヶ月 |
| 入居日 | 即 |
| 所在地 | 東京都港区芝浦1-15-13 |
| 竣工 | 1995年2月 |
| 最寄り駅 |
JR山手線 田町 徒歩 7分 都営三田線 三田 徒歩 8分 |
| 構造 | RC造(鉄筋コンクリート造) |
ポイント
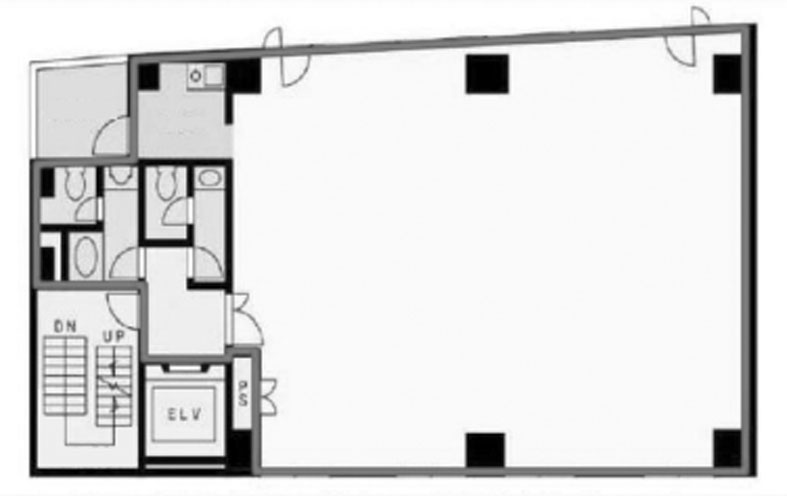
東京都港区芝浦にある地上6階の賃貸オフィス物件です。 最寄りは、JR山手線田町駅より徒歩7分、都営三田線三田駅より徒歩8分などです。 1995年竣工、基準階40坪、2015年に内装と外壁の改修を行っています。 貸室内は個別空調を採用し、室外男女別トイレのため、室内スペースにも余裕があります。 エレベーターは1基設置されています。
無料相談で理想のオフィスを見つけましょう
東京で賃貸オフィスをお探しなら、仲介手数料0円の東京オフィスチェックにお任せください。
移転をお考えの方も、お迷いの方も、メールフォームやお電話でお気軽にご相談ください。
田嶋ビル のアクセス
田嶋ビル の募集中区画
| 階数 | 面積 | 賃料 | 共益費 | 保証金/敷金 | 入居可能日 | 検討リスト | 詳細 |
|---|---|---|---|---|---|---|---|
| 6階 | 38.46坪 | 480,750円 | 96,150円 | 6ヶ月 | 即 | 詳細 > 田嶋ビル 6 (127.14㎡) |港区 の賃貸オフィス・セットアップオフィス |
この区画にオススメのレイアウト
-
オフィスサンプルレイアウト120
- 広さ
- 30.2坪(100㎡)
- 会議室
- あり
- 従業員数
- 12
-
オフィスサンプルレイアウト118
- 広さ
- 40.2坪(133㎡)
- 会議室
- なし
- 従業員数
- 20
-
オフィスサンプルレイアウト117
- 広さ
- 22.6坪(75㎡)
- 会議室
- あり
- 従業員数
- 11
-
オフィスサンプルレイアウト116
- 広さ
- 39.9坪(132㎡)
- 会議室
- あり
- 従業員数
- 11
田嶋ビル の条件に近い物件
-
シティタワー品川
東京都港区港南4-2
- 面積
- 坪 〜
- 空きフロア
- 0
- 最寄り駅
- 品川 徒歩 10分
-
アクティ汐留
東京都港区海岸1-1-1
- 面積
- 坪 〜
- 空きフロア
- 0
- 最寄り駅
- 浜松町 徒歩 3分
-
住友不動産田町ビル東館
東京都港区芝浦3-16-16
- 面積
- 坪 〜
- 空きフロア
- 0
- 最寄り駅
- 田町 徒歩 5分
-
松岡品川埠頭ビル
東京都港区港南5-4-38
- 面積
- 20坪 〜
- 空きフロア
- 2
- 最寄り駅
- 天王洲アイル 徒歩 13分
田嶋ビル の近隣のエリア・駅から探す
オフィス移転・物件探しを無料でサポートします
物件探しだけでは、オフィス移転は成功しません。
私たちは単なる「物件紹介会社」ではありません。オフィス移転にかかる費用総額を最小化する専門会社です。物件契約時の仲介手数料0円に加え、内装工事も中間マージンを排除した適正価格でご提案し、トータルコストを大幅に削減します。「希望の物件が見つからない」「移転費用を抑えたい」など、移転をお考えの方はメールまたはお電話でお気軽にご相談ください。




